简体版
|
繁体版
无障碍
集
网站首页
政府信息公开
信息公开指南
信息公开制度
信息公开目录
法定主动公开内容
信息公开年报
依申请公开
网上办事
互动交流
不动产登记
党风廉政
10456380
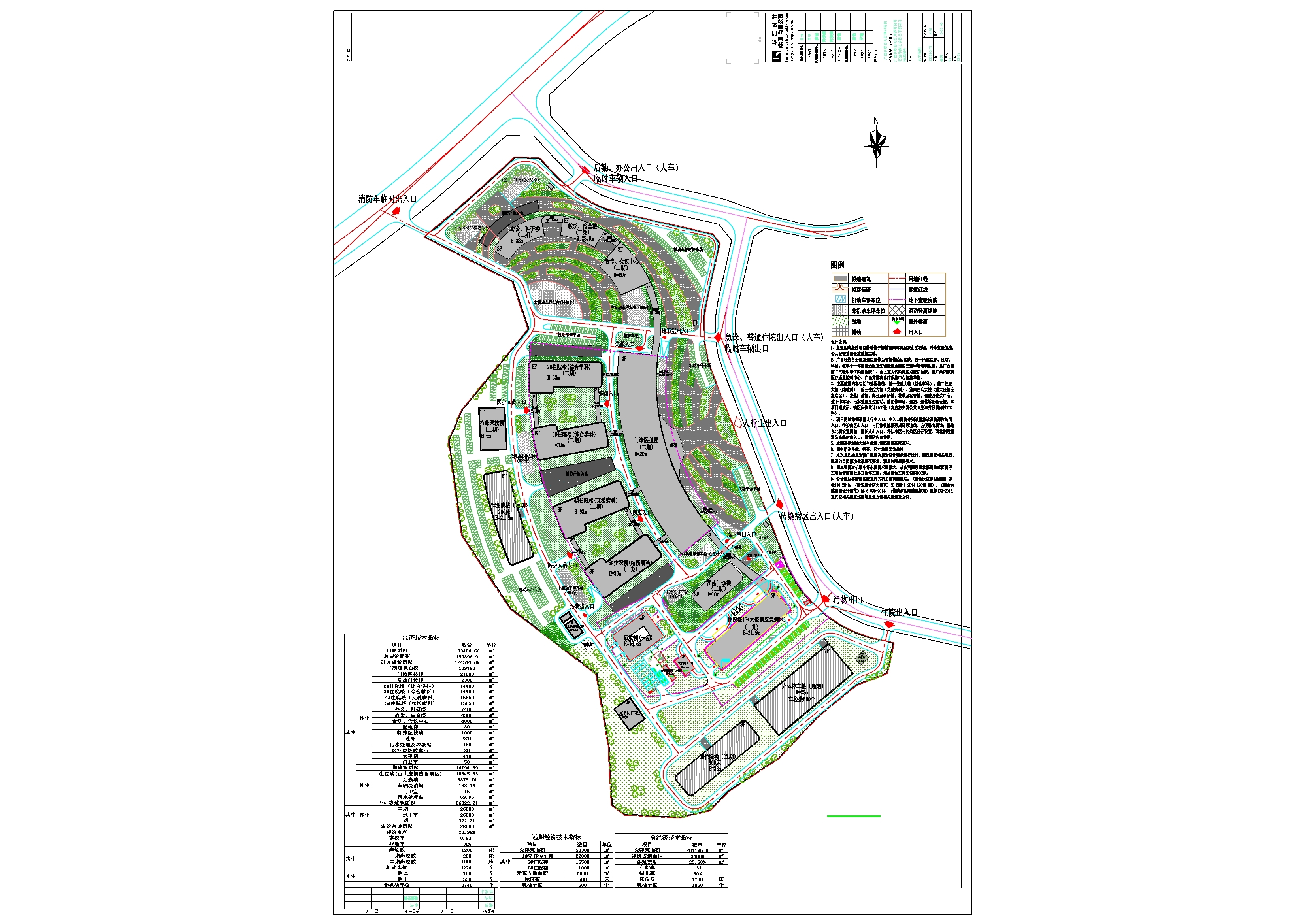
“广西龙潭医院医疗区整体搬迁项目”规划总平(2021-258#)已经我局批准
20
柳州市自然资源和规划局
2021-09-06
69237
规划总平图批后公布
当前位置:
首页
>
政务公开
>
政府信息公开
>
法定主动公开内容
>
规划管理
>
规划公布
>
规划总平图批后公布
“广西龙潭医院医疗区整体搬迁项目”规划总平(2021-258#)已经我局批准
2021-09-06 08:15 来源:柳州市自然资源和规划局
我要收藏
公共资源调用站点
文章分享
分享
微信
头条
微博
空间
qq
【字体:
大
中
小
】
打印
“广西龙潭医院医疗区整体搬迁项目”规划总平(2021-258#)
已于2021年8月2日经我局批准(广西壮族自治区胸科医院 南环路)
文件下载:
2021-258#广西龙潭医院医疗区整体搬迁项目规划总平图.jpg
关联文件: