简体版
|
繁体版
无障碍
集
网站首页
政府信息公开
信息公开指南
信息公开制度
信息公开目录
法定主动公开内容
信息公开年报
依申请公开
网上办事
互动交流
不动产登记
党风廉政
25928381
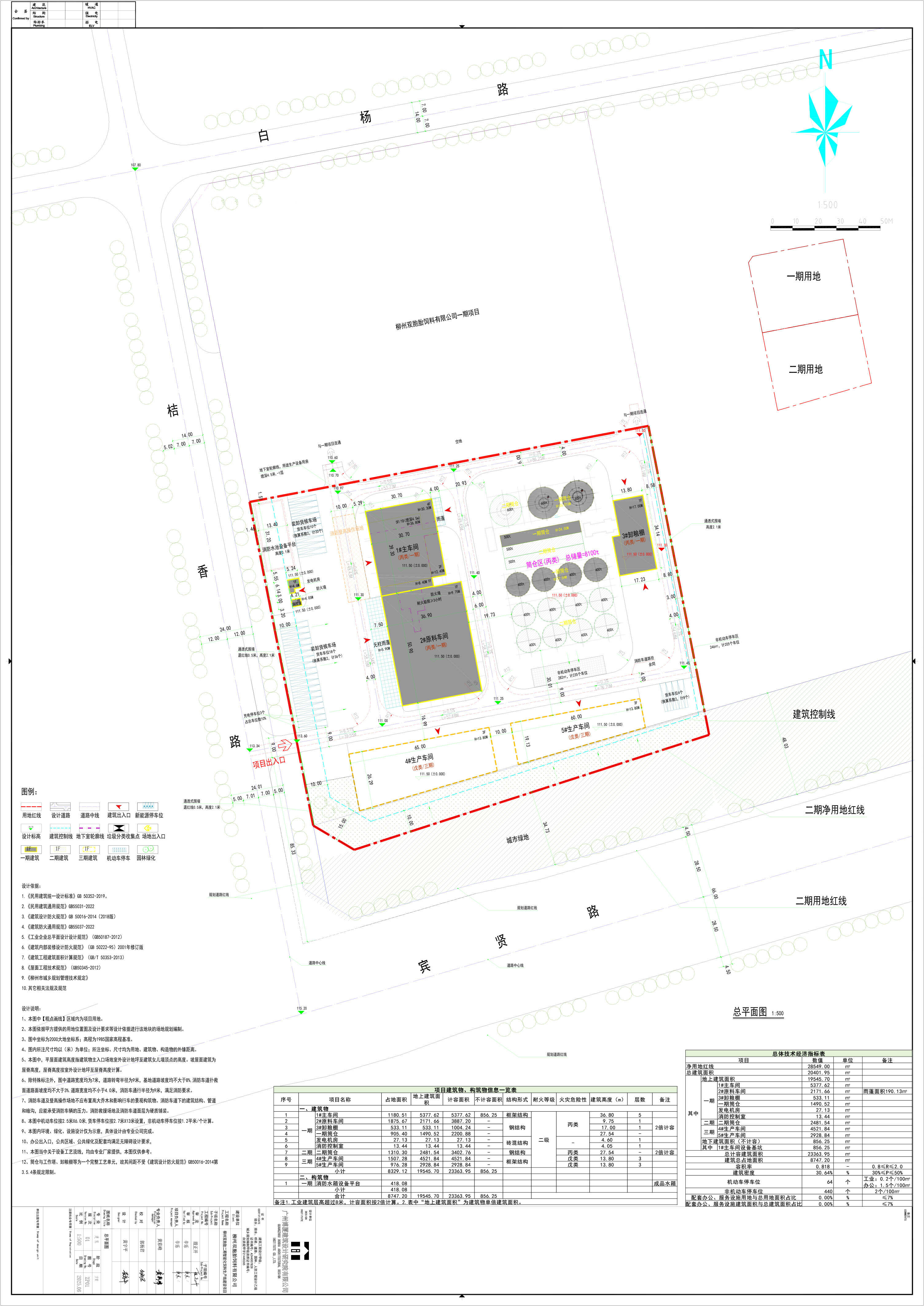
“智能化饲料生产建设项目”规划总平(2025-214#)已经我局批准
20
柳州市自然资源和规划局
2025-07-14
69237
规划总平图批后公布
当前位置:
首页
>
政务公开
>
政府信息公开
>
法定主动公开内容
>
规划管理
>
规划公布
>
规划总平图批后公布
“智能化饲料生产建设项目”规划总平(2025-214#)已经我局批准
2025-07-14 08:10 来源:柳州市自然资源和规划局
分享
微信
头条
微博
空间
qq
【字体:
大
中
小
】
打印
“
智能化饲料生产建设项目
”
规划总平
(
2025-214
#
)
已于
2025
年7月4日
经我局批准
(
柳州双胞胎饲料有限公司
柳州市柳北区沙塘工业园西南角地块
)
文件下载:
2025-214# 智能化饲料生产建设项目总平图(2025年7月4日经我局批准)(柳州双胞胎饲料有限公司 柳州市柳北区沙塘工业园西南角地块).jpg
关联文件: