简体版| 繁体版
无障碍
当前位置:首页 > 政务公开 > 政府信息公开 > 法定主动公开内容 > 规划管理 > 规划公布 > 规划总平图批后公布

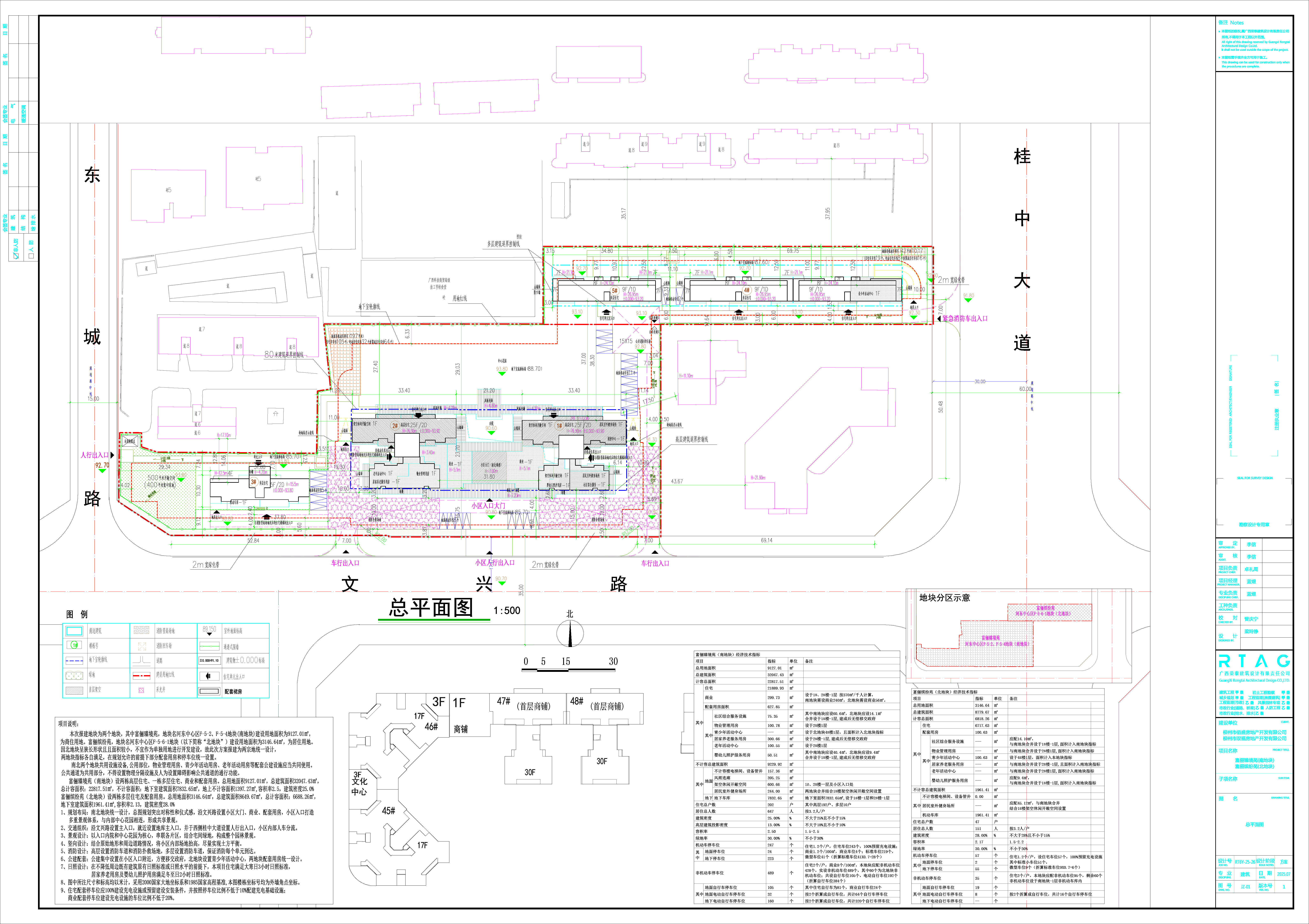
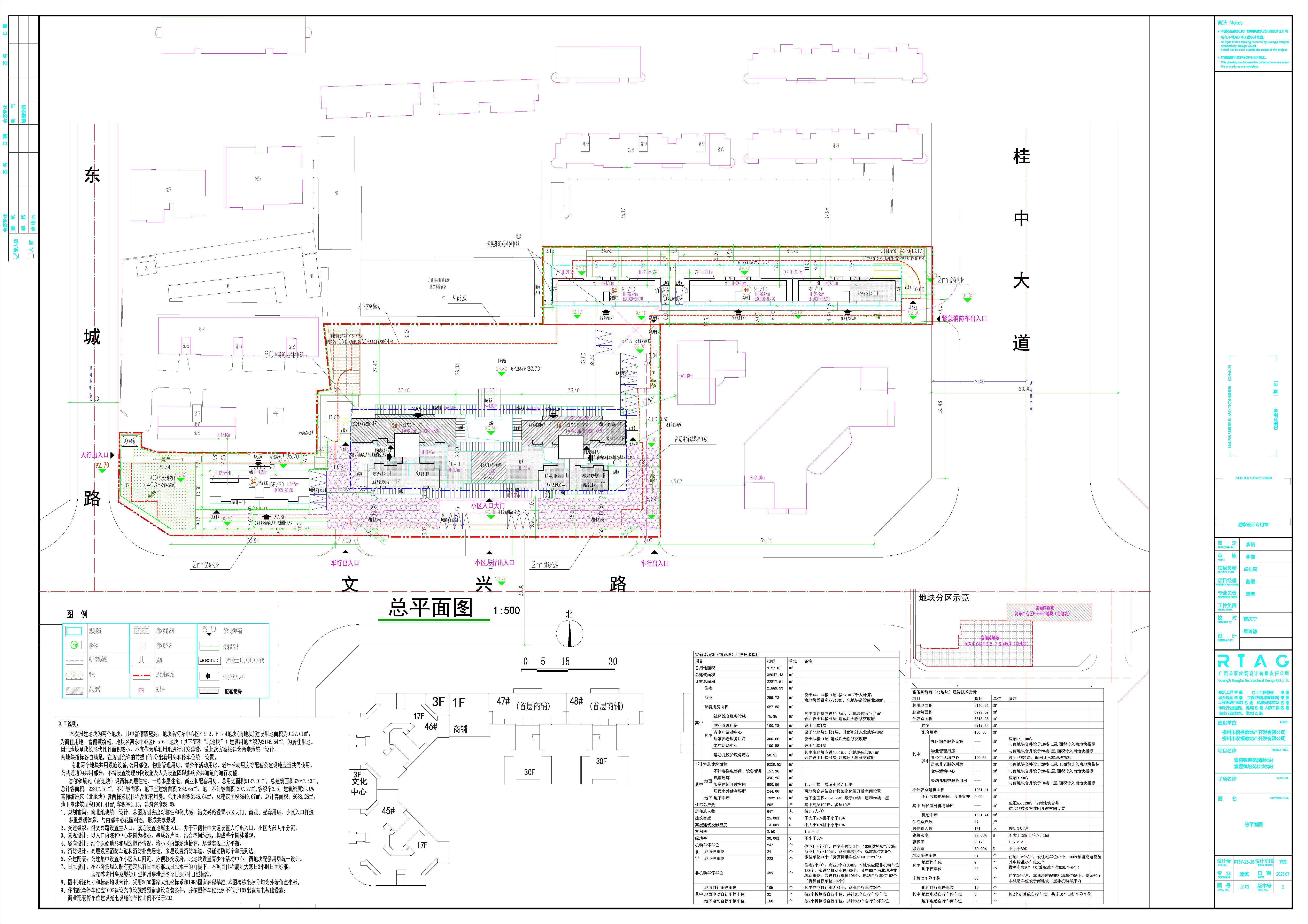
“柳州市富丽臻境苑(南地块)、富丽缤纷苑(北地块)”方案及总平审查(2025256#)已批准

2025-09-12 08:20     来源:柳州市自然资源和规划局
收藏 我要收藏 公共资源调用站点 文章分享
分享 微信
头条
微博 空间 qq
【字体: 打印

柳州市富丽臻境苑(南地块)、富丽缤纷苑(北地块)方案及总平审查2025256#
已于
2025年9月9日批准
柳州市佰盛房地产开发有限公司、柳州市双福房地产开发有限公司  柳州市潭中大道南侧

关联文件: