简体版
|
繁体版
无障碍
集
网站首页
政府信息公开
信息公开指南
信息公开制度
信息公开目录
法定主动公开内容
信息公开年报
依申请公开
网上办事
互动交流
不动产登记
党风廉政
26184813
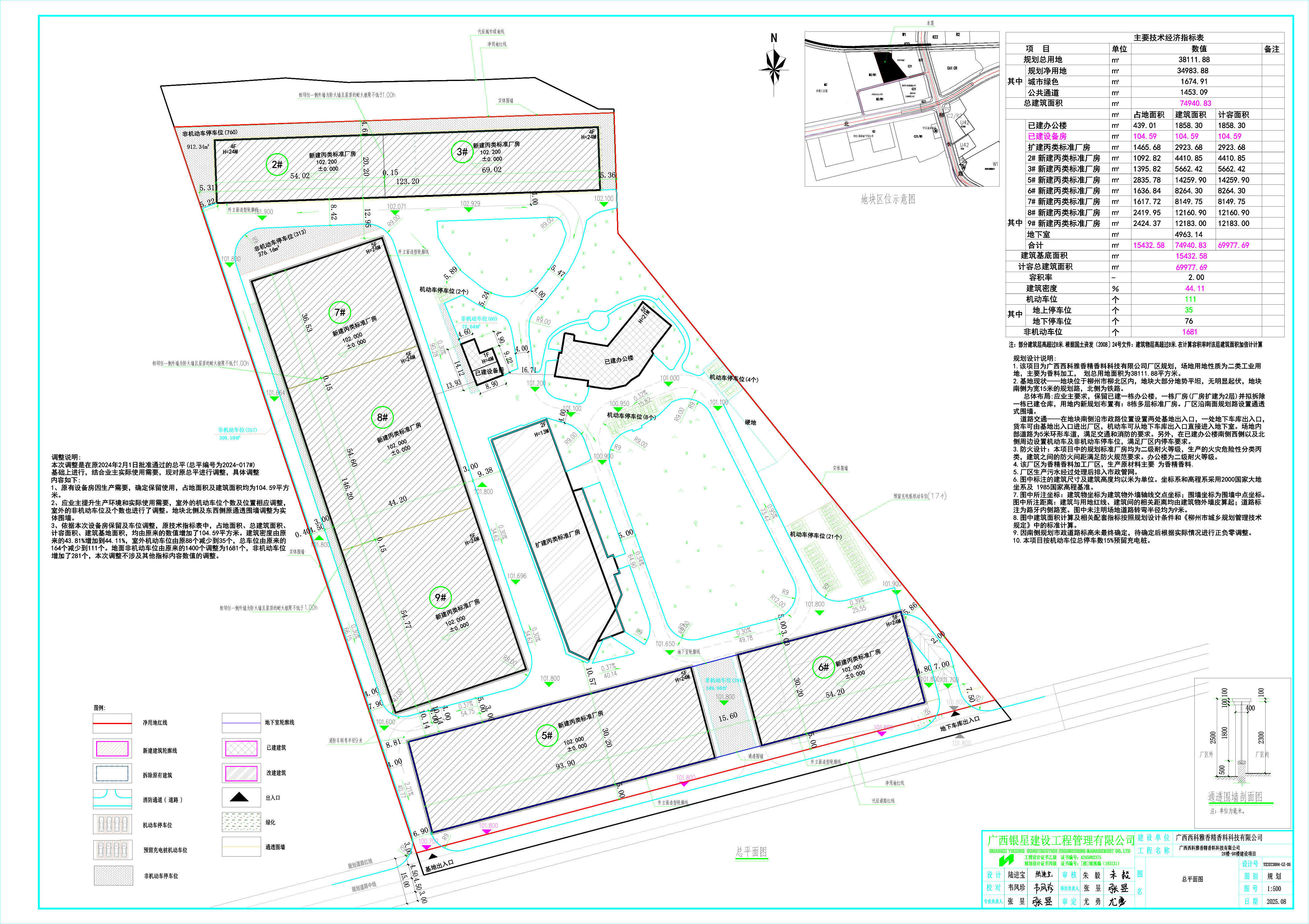
“广西西科雅香精香料科技有限公司2#楼-9#楼”规划总平调整(2025259#)已经我局审批
20
柳州市自然资源和规划局
2025-09-29
69237
规划总平图批后公布
当前位置:
首页
>
政务公开
>
政府信息公开
>
法定主动公开内容
>
规划管理
>
规划公布
>
规划总平图批后公布
“广西西科雅香精香料科技有限公司2#楼-9#楼”规划总平调整(2025259#)已经我局审批
2025-09-29 08:05 来源:柳州市自然资源和规划局
我要收藏
公共资源调用站点
文章分享
分享
微信
头条
微博
空间
qq
【字体:
大
中
小
】
打印
“
广西西科雅香精香料科技有限公司2#楼-9#楼
”
规划总平调整
(
2025259
#
)
已于
2025
年9月17日
经我局审批
(
广西西科雅香精香料科技有限公司
柳长路19号之一
)
文件下载:
2025-259# 广西西科雅香精香料科技有限公司2#楼-9#楼总平调整(已于2025年9月17日经我局审批)(广西西科雅香精香料科技有限公司 柳长路19号之一).jpg
关联文件: