简体版
|
繁体版
无障碍
集
网站首页
政府信息公开
信息公开指南
信息公开制度
信息公开目录
法定主动公开内容
信息公开年报
依申请公开
网上办事
互动交流
不动产登记
党风廉政
27099231
“110kV思贤送变电工程项目”规划总平调整(2025-282#)已经我局批准
20
柳州市自然资源和规划局
2025-10-31
69237
规划总平图批后公布
当前位置:
首页
>
政务公开
>
政府信息公开
>
法定主动公开内容
>
规划管理
>
规划公布
>
规划总平图批后公布
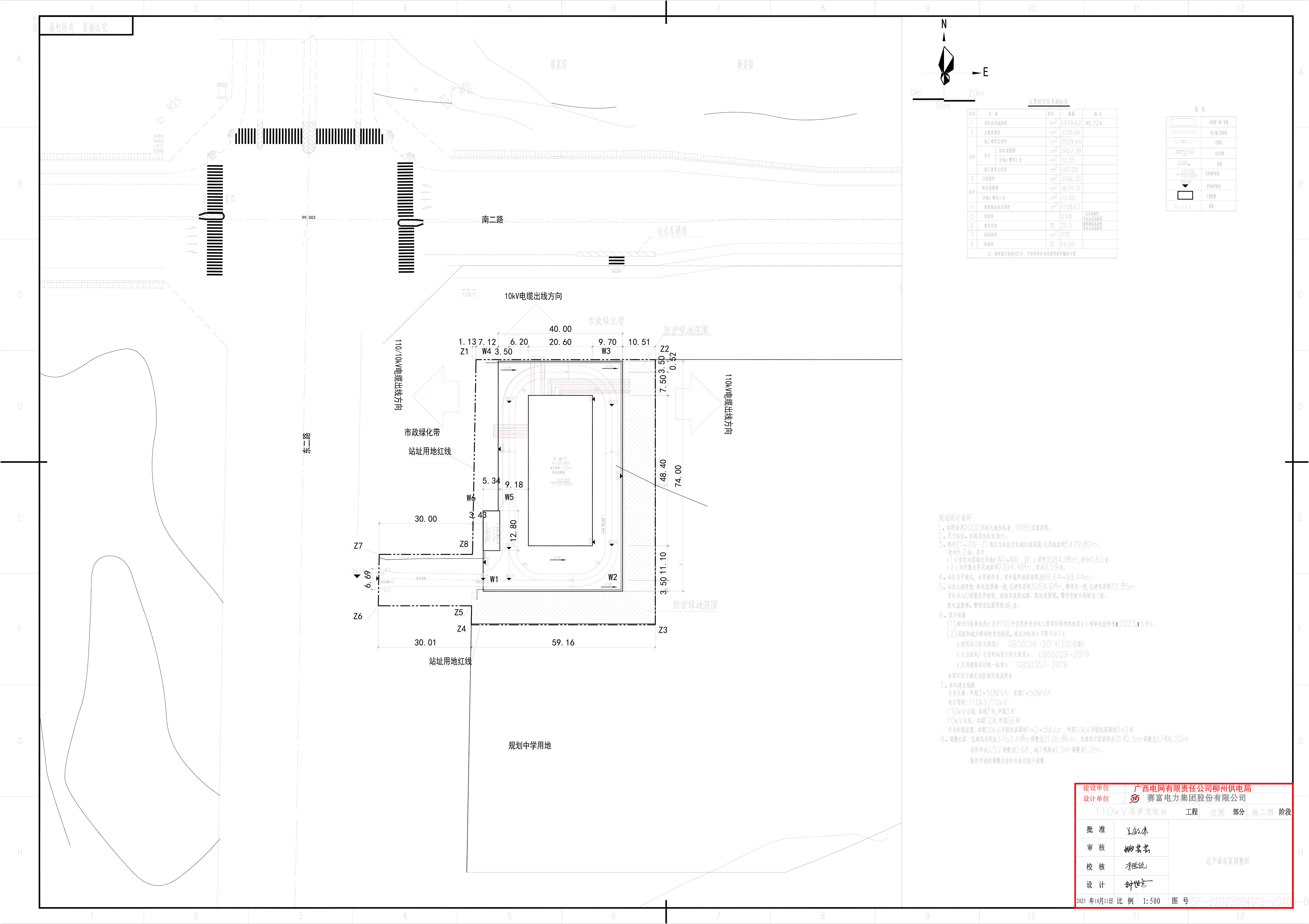
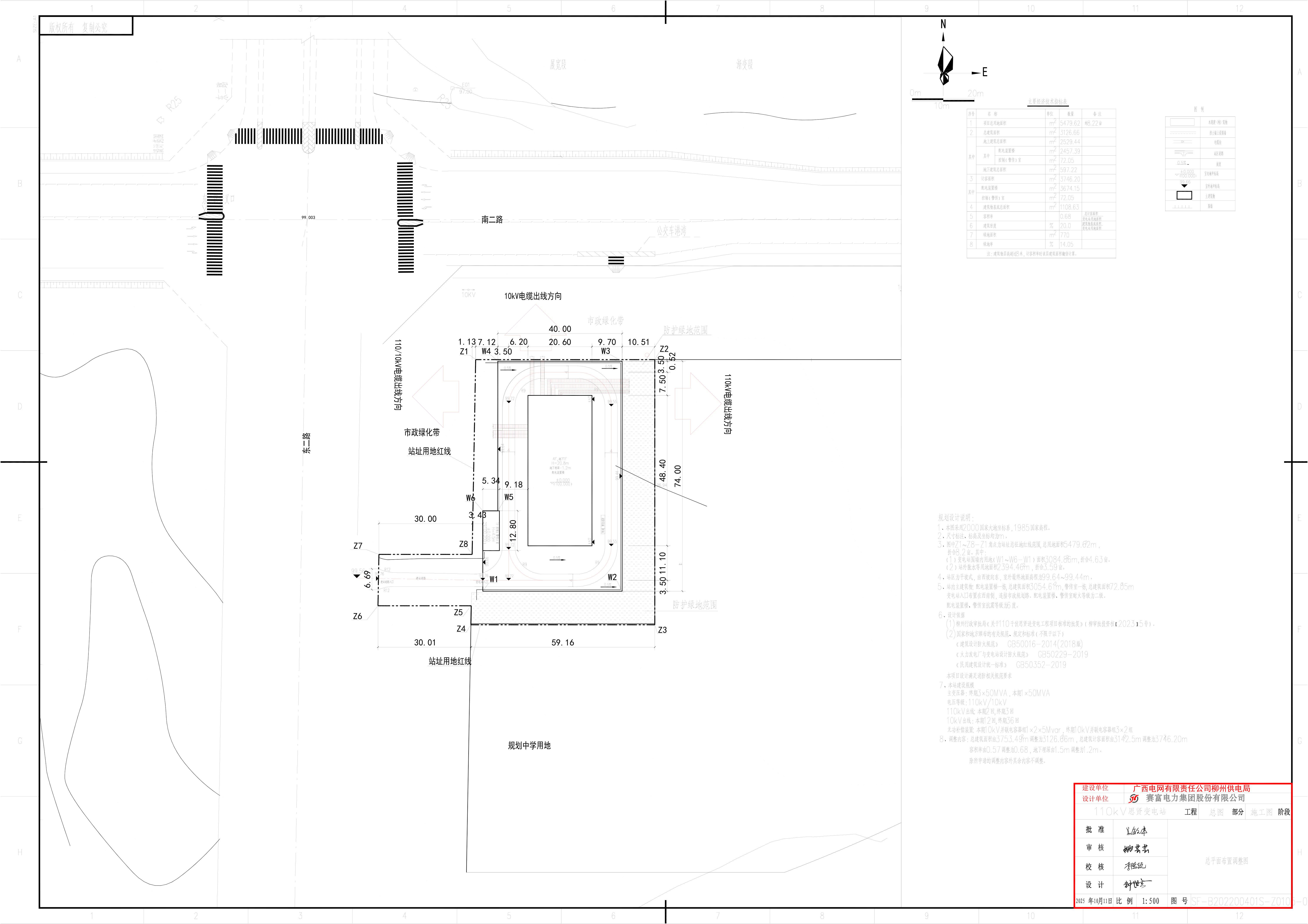
“110kV思贤送变电工程项目”规划总平调整(2025-282#)已经我局批准
2025-10-31 08:25 来源:柳州市自然资源和规划局
我要收藏
公共资源调用站点
文章分享
分享
微信
头条
微博
空间
qq
【字体:
大
中
小
】
打印
“
110kV
思贤送变电工程项目
”
规划总平调整
(
2025-282
#
)
已于
2025
年10月27日
经我局批准
(
广西电网有限责任公司柳州供电局
柳江区拉堡镇思贤村
)
文件下载:
2025-282# 110kV思贤送变电工程项目总平调整(2025年10月27日经我局批准)(广西电网有限责任公司柳州供电局 柳江区拉堡镇思贤村).jpg
关联文件: