简体版
|
繁体版
无障碍
集
网站首页
政府信息公开
信息公开指南
信息公开制度
信息公开目录
法定主动公开内容
信息公开年报
依申请公开
网上办事
互动交流
不动产登记
党风廉政
27236533
“智能家电产业项目”规划总平(2025-298#)已经批准
20
柳州市自然资源和规划局
2025-11-27
69237
规划总平图批后公布
当前位置:
首页
>
政务公开
>
政府信息公开
>
法定主动公开内容
>
规划管理
>
规划公布
>
规划总平图批后公布
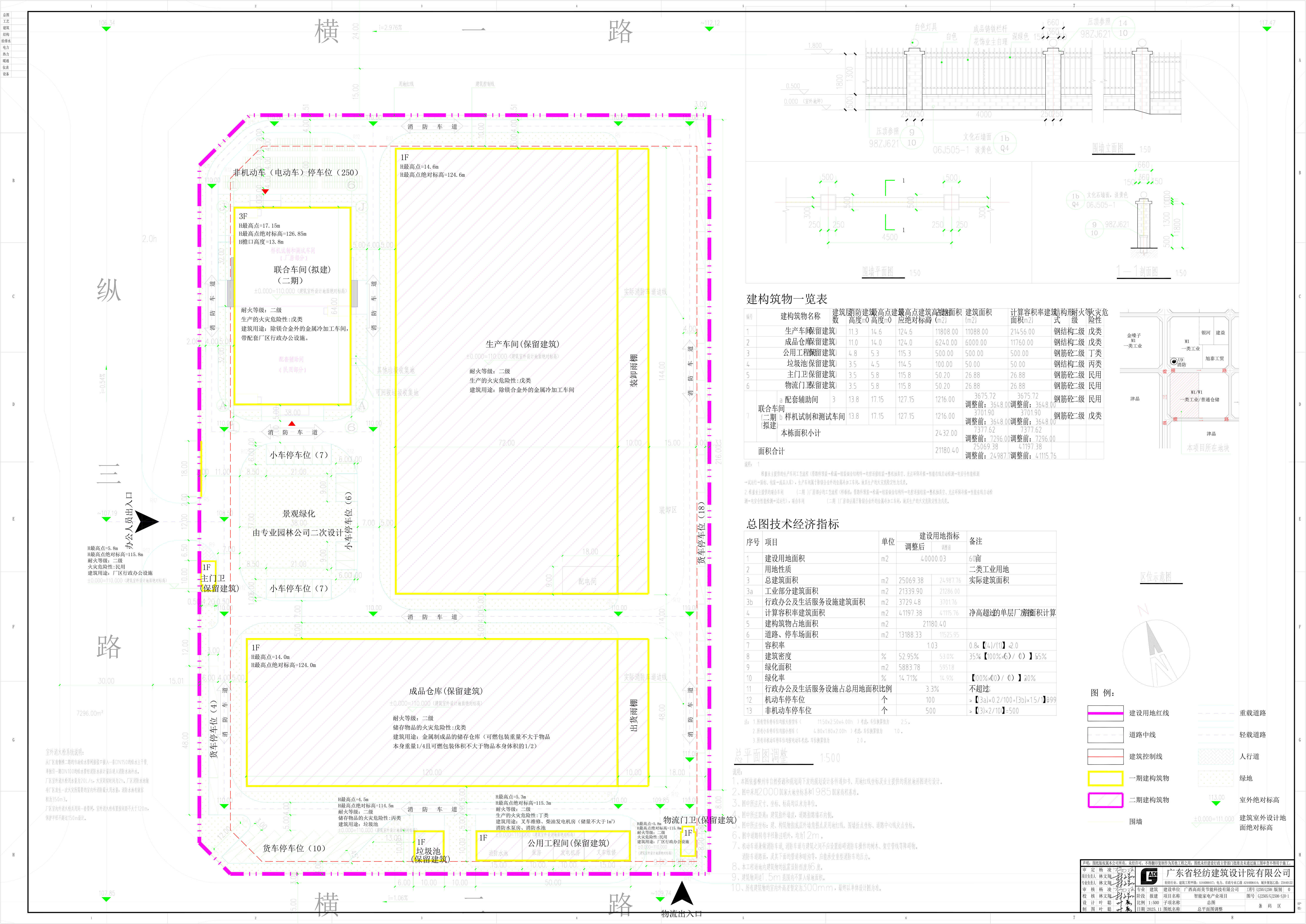
“智能家电产业项目”规划总平(2025-298#)已经批准
2025-11-27 08:45 来源:柳州市自然资源和规划局
我要收藏
公共资源调用站点
文章分享
分享
微信
头条
微博
空间
qq
【字体:
大
中
小
】
打印
“
智能家电产业项目
”
规划总平
(
2025-298
#
)
已于
2025
年11月25日
经批准
(
广西高而美节能科技有限公司
柳州市柳江区穿山镇凤翔路1号
)
文件下载:
2025-298智能家电产业项目(2025年11月25日经批准)(广西高而美节能科技有限公司 柳州市柳江区穿山镇凤翔路1号).jpg
关联文件: