简体版
|
繁体版
无障碍
集
网站首页
政府信息公开
信息公开指南
信息公开制度
信息公开目录
法定主动公开内容
信息公开年报
依申请公开
网上办事
互动交流
不动产登记
党风廉政
27244646
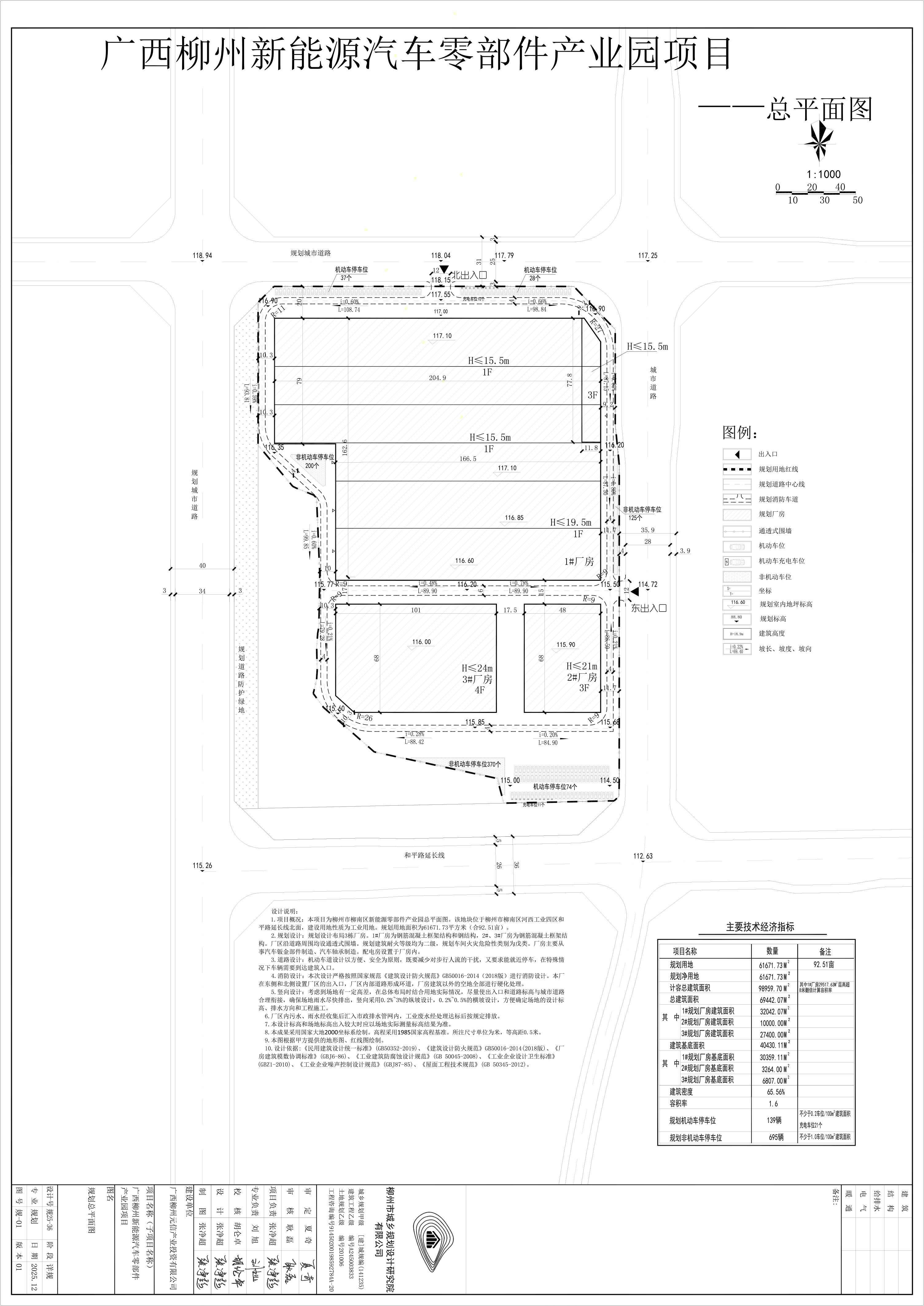
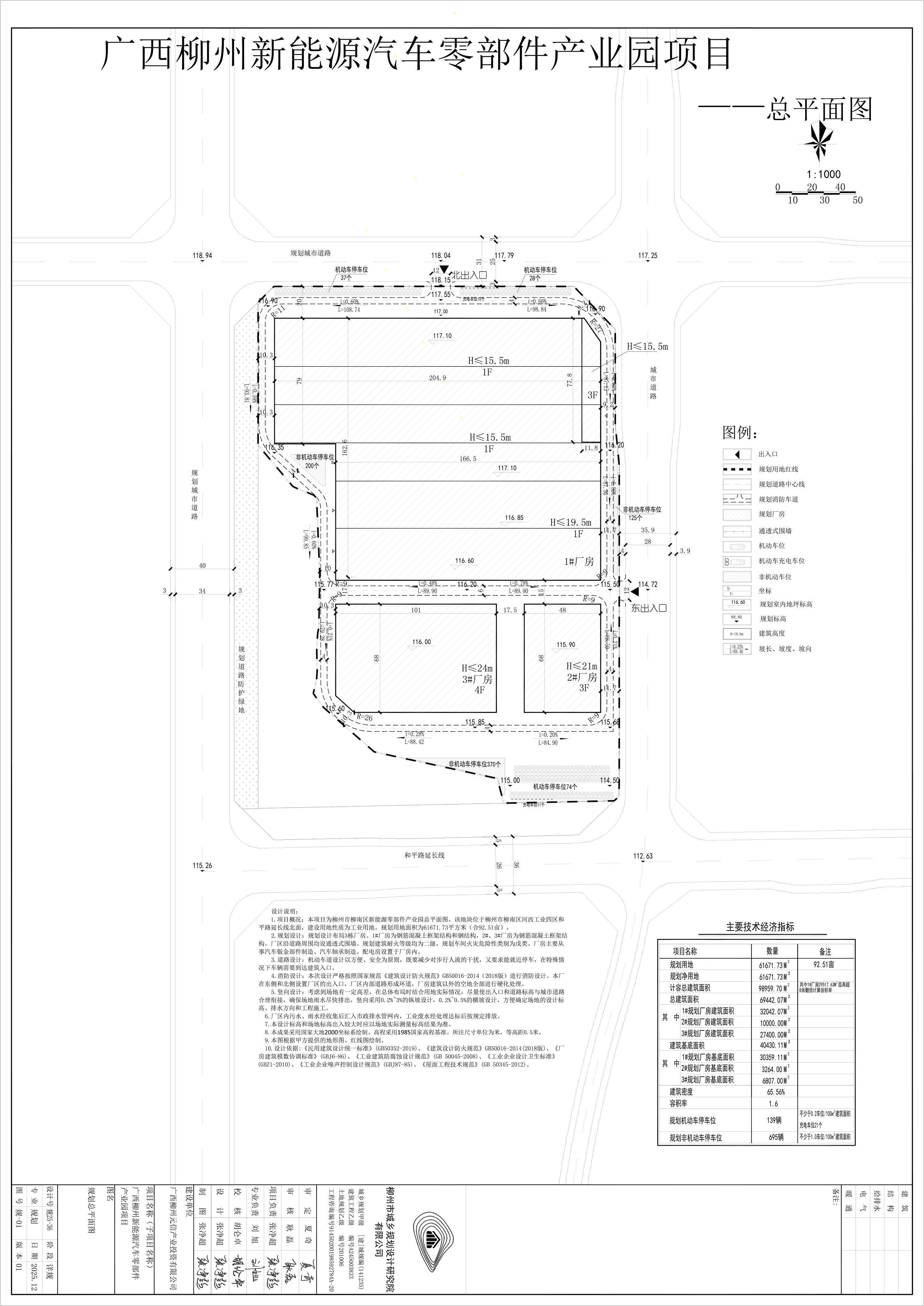
“广西柳州新能源汽车零部件产业园项目”规划总平调整(2025-324#)已批准
20
柳州市自然资源和规划局
2025-12-31
69237
规划总平图批后公布
当前位置:
首页
>
政务公开
>
政府信息公开
>
法定主动公开内容
>
规划管理
>
规划公布
>
规划总平图批后公布
“广西柳州新能源汽车零部件产业园项目”规划总平调整(2025-324#)已批准
2025-12-31 08:20 来源:柳州市自然资源和规划局
我要收藏
公共资源调用站点
文章分享
分享
微信
头条
微博
空间
qq
【字体:
大
中
小
】
打印
“
广西柳州新能源汽车零部件产业园项目
”
规划总平调整
(
2025-324
#
)
已于
2025
年12月30日
批准
(
广西柳州元信产业投资有限公司
河西工业四区A-8-1部分地块
)
文件下载:
2025-324广西柳州元信产业投资有限公司广西柳州新能源汽车零部件产业园项目(河西工业四区A-8-1部分地块2025年12月30日批准).jpg
关联文件: