简体版
|
繁体版
无障碍
集
网站首页
政府信息公开
信息公开指南
信息公开制度
信息公开目录
法定主动公开内容
信息公开年报
依申请公开
网上办事
互动交流
不动产登记
党风廉政
27291970
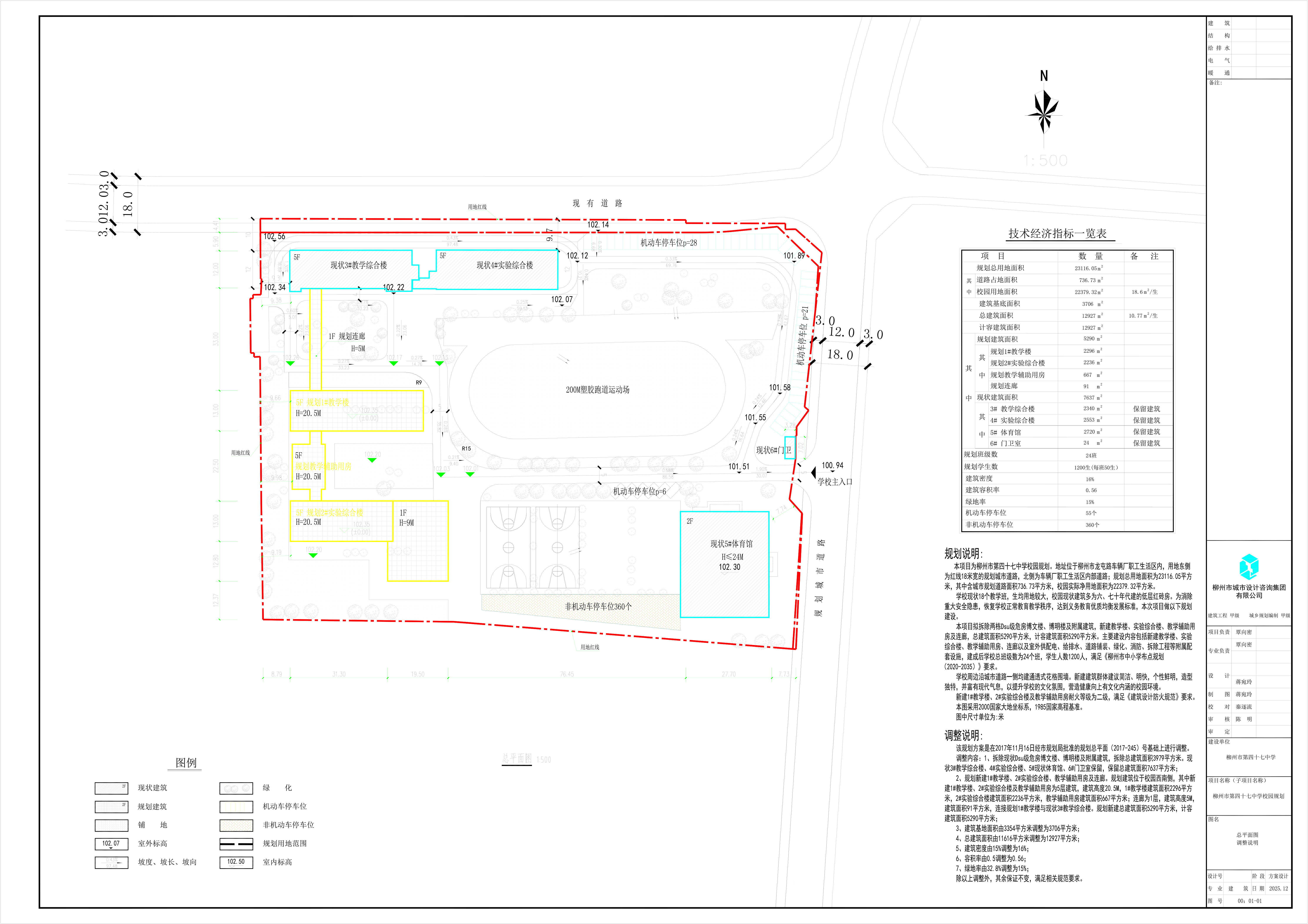
“柳州市第四十七中学校园”规划总平调整(2026-004#)已经我局批准
20
柳州市自然资源和规划局
2026-01-08
69237
规划总平图批后公布
当前位置:
首页
>
政务公开
>
政府信息公开
>
法定主动公开内容
>
规划管理
>
规划公布
>
规划总平图批后公布
“柳州市第四十七中学校园”规划总平调整(2026-004#)已经我局批准
2026-01-08 08:40 来源:柳州市自然资源和规划局
我要收藏
公共资源调用站点
文章分享
分享
微信
头条
微博
空间
qq
【字体:
大
中
小
】
打印
“
柳州市第四十七中学校园
”
规划总平调整
(
2026-004
#
)
已于
2026
年1月6日
经我局批准
(
柳州市第四十七中学
龙屯路车辆厂职工生活区内
)
文件下载:
2026-004柳州市第四十七中学校园规划(2026年1月6日经我局批准)(柳州市第四十七中学 柳州市龙屯路车辆厂职工生活区内).jpg
关联文件: