简体版
|
繁体版
无障碍
集
网站首页
政府信息公开
信息公开指南
信息公开制度
信息公开目录
法定主动公开内容
信息公开年报
依申请公开
网上办事
互动交流
不动产登记
党风廉政
27292006
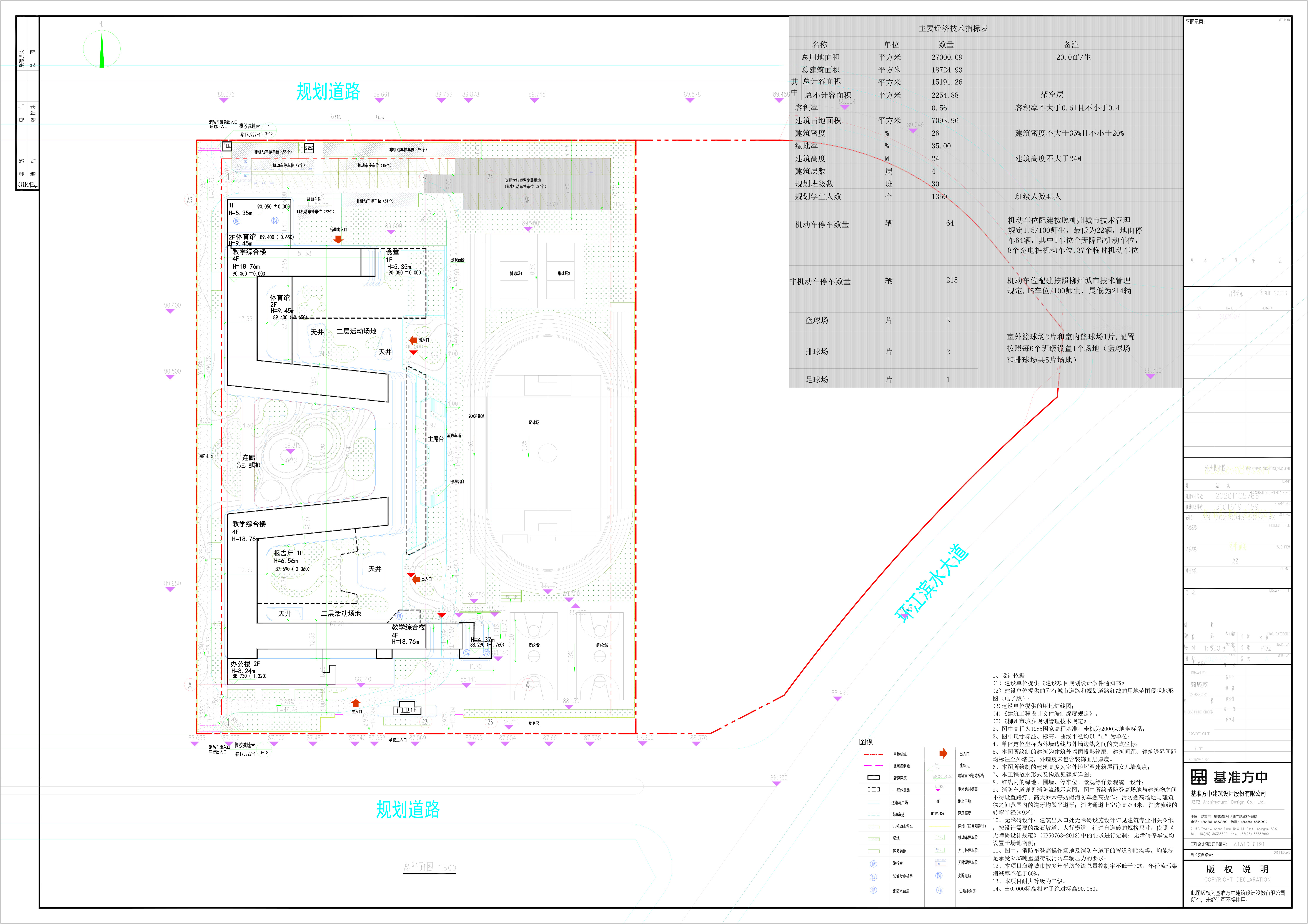
“静兰湾文旅小镇8号地块小学”总平审查(2026-007#)已经我局批准
20
柳州市自然资源和规划局
2026-01-19
69237
规划总平图批后公布
当前位置:
首页
>
政务公开
>
政府信息公开
>
法定主动公开内容
>
规划管理
>
规划公布
>
规划总平图批后公布
“静兰湾文旅小镇8号地块小学”总平审查(2026-007#)已经我局批准
2026-01-19 08:45 来源:柳州市自然资源和规划局
我要收藏
公共资源调用站点
文章分享
分享
微信
头条
微博
空间
qq
【字体:
大
中
小
】
打印
“
静兰湾文旅小镇8号地块小学
”
总平审查
(
2026-007
#
)
已于
2026
年1月13日
经我局批准
(
柳州轨道润投置业发展有限公司
桂柳路南侧静兰独凳山片区8-2号地块
)
文件下载:
2026-007静兰湾文旅小镇8号地块小学(2026年1月13日经我局批准)(柳州轨道润投置业发展有限公司)(桂柳路南侧静兰独凳山片区8-2号地块).jpg
关联文件: