简体版
|
繁体版
无障碍
集
网站首页
政府信息公开
信息公开指南
信息公开制度
信息公开目录
法定主动公开内容
信息公开年报
依申请公开
网上办事
互动交流
不动产登记
党风廉政
27415859
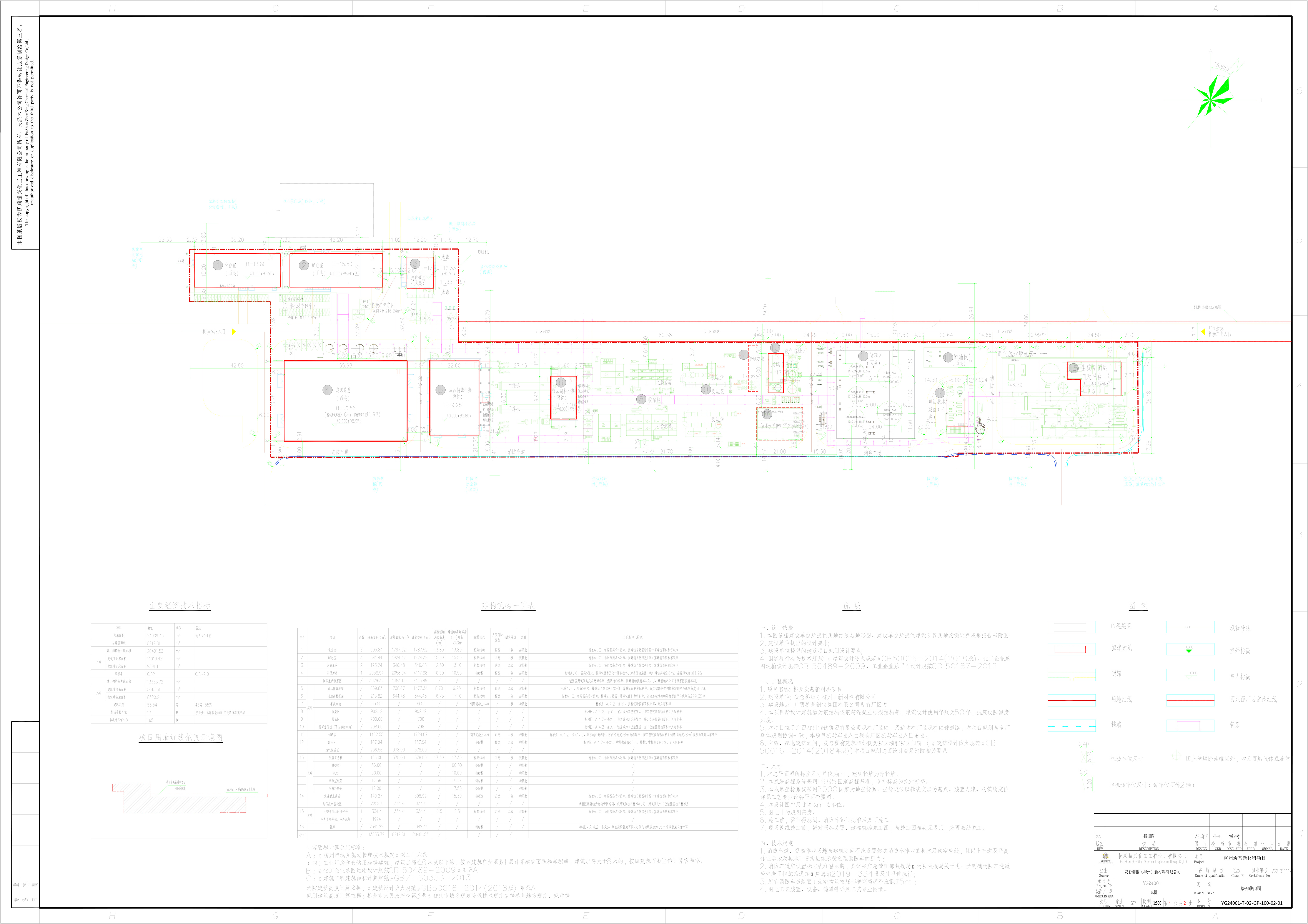
“柳州碳基新材料项目”设计方案及总平审查(2026-028#)已经批准
20
柳州市自然资源和规划局
2026-02-13
69237
规划总平图批后公布
当前位置:
首页
>
政务公开
>
政府信息公开
>
法定主动公开内容
>
规划管理
>
规划公布
>
规划总平图批后公布
“柳州碳基新材料项目”设计方案及总平审查(2026-028#)已经批准
2026-02-13 08:50 来源:柳州市自然资源和规划局
我要收藏
公共资源调用站点
文章分享
分享
微信
头条
微博
空间
qq
【字体:
大
中
小
】
打印
“
柳州碳基新材料项目
”
设计方案及总平审查
(
2026-028
#
)
已于
2026
年2月12日
经批准
(
安仑柳钢(柳州)新材料有限公司
北雀路117号
)
文件下载:
2026-028柳州炭基新材料项目总平面规划图(2026年2月12日经批准)(安仑柳钢(柳州)新材料有限公司 北雀路117号).jpg
关联文件: