简体版
|
繁体版
无障碍
集
网站首页
政府信息公开
信息公开指南
信息公开制度
信息公开目录
法定主动公开内容
信息公开年报
依申请公开
网上办事
互动交流
不动产登记
党风廉政
3914643
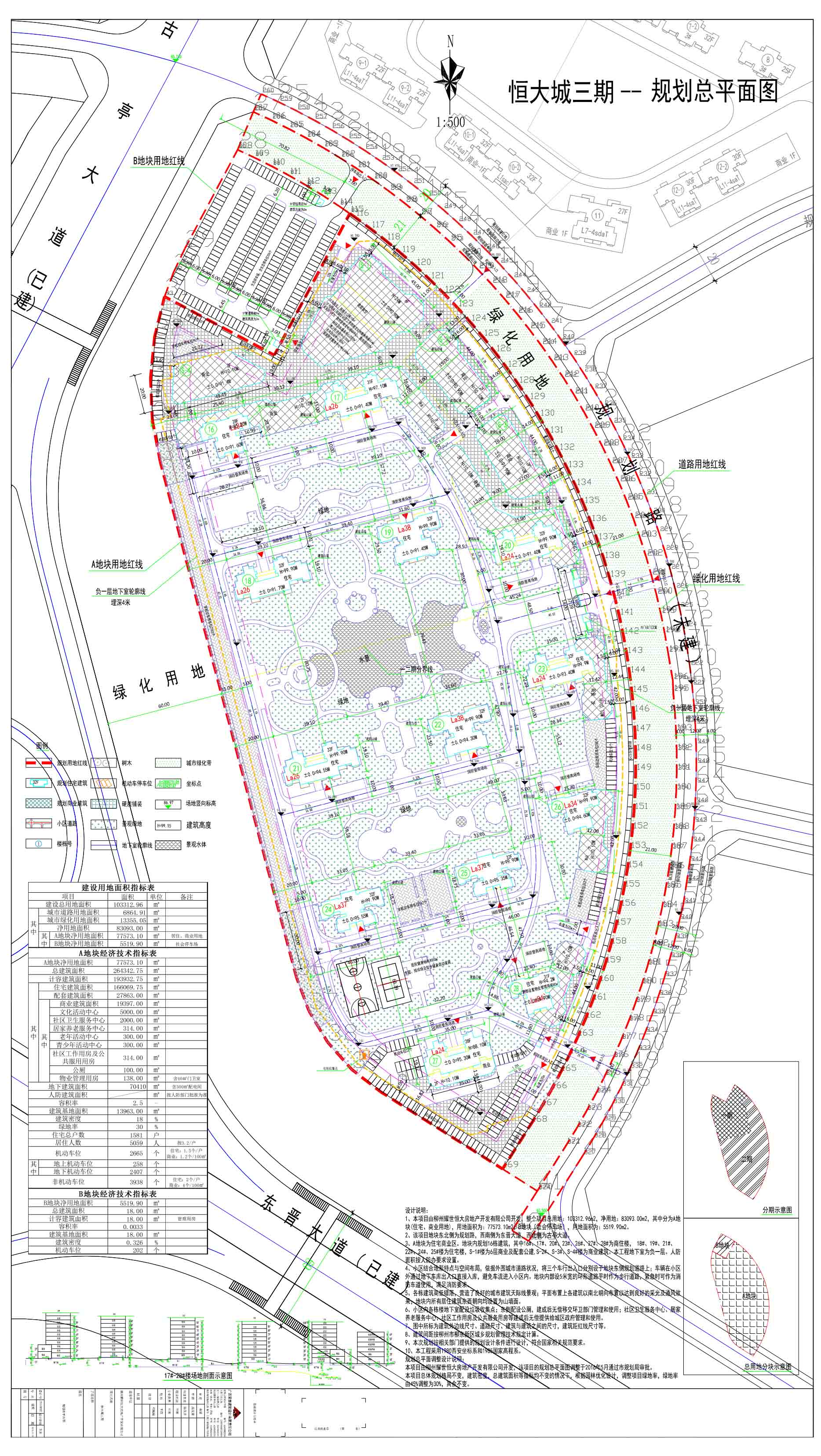
“恒大城三期”规划总平面图(2019-138#)已经我局批准
20
柳州市自然资源和规划局
柳州市自然资源和规划局
2019-05-21
69237
规划总平图批后公布
当前位置:
首页
>
政务公开
>
政府信息公开
>
法定主动公开内容
>
规划管理
>
规划公布
>
规划总平图批后公布
“恒大城三期”规划总平面图(2019-138#)已经我局批准
“恒大城三期”规划总平面图(2019-138#)已经我局批准
2019-05-21 17:54 来源:柳州市自然资源和规划局 作者:柳州市自然资源和规划局
我要收藏
公共资源调用站点
文章分享
分享
微信
头条
微博
空间
qq
【字体:
大
中
小
】
打印
“恒大城三期”规划总平面图(2019-138#)
已于2019年5月16日经我局批准(柳州市耀世恒大房地产开发有限公司 古亭大道6号)
附件:
“恒大城三期”规划总平面图
文件下载:
关联文件: