简体版| 繁体版
无障碍
当前位置:首页 > 政务公开 > 政府信息公开 > 法定主动公开内容 > 规划管理 > 规划公布 > 规划总平图批后公布

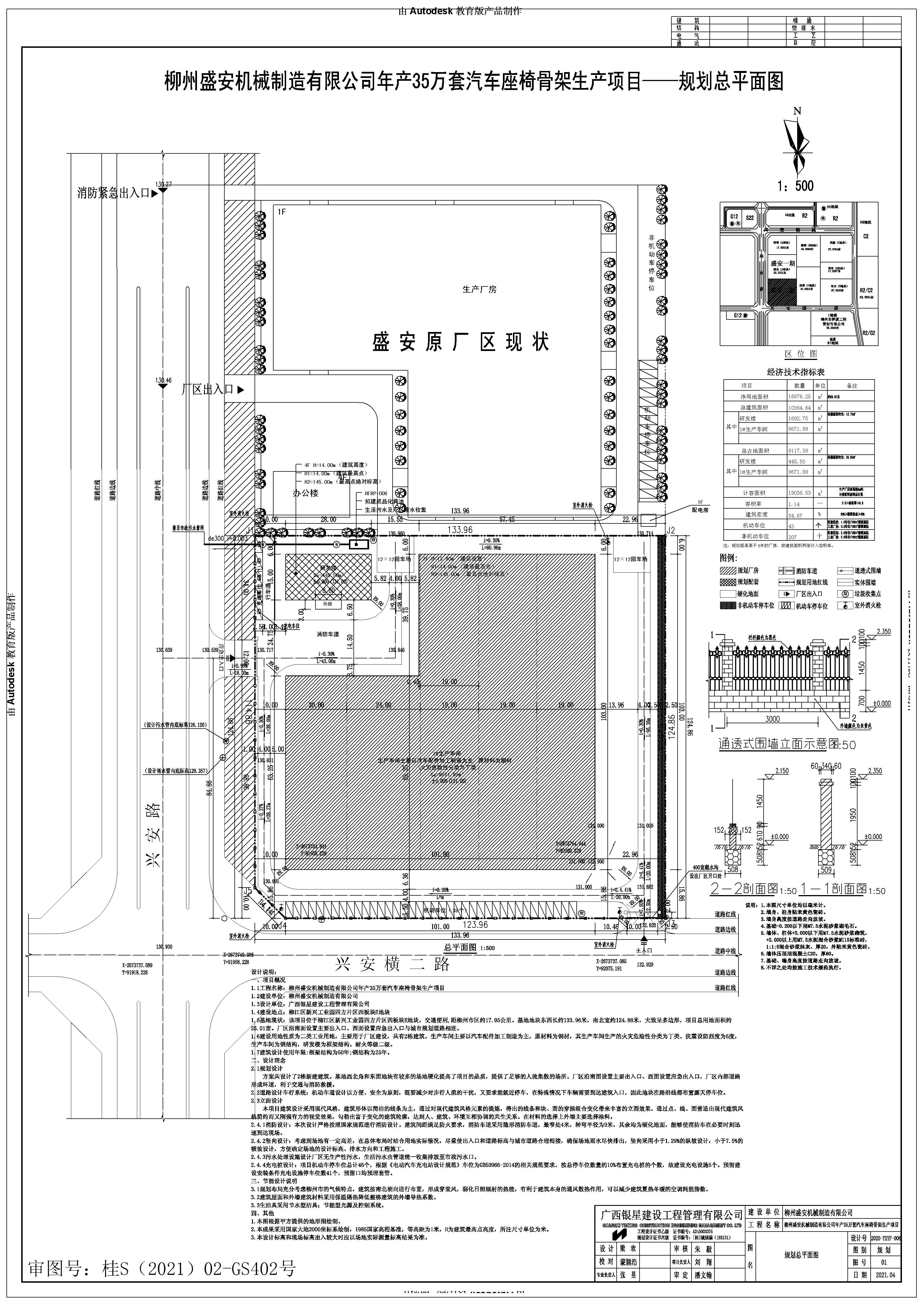
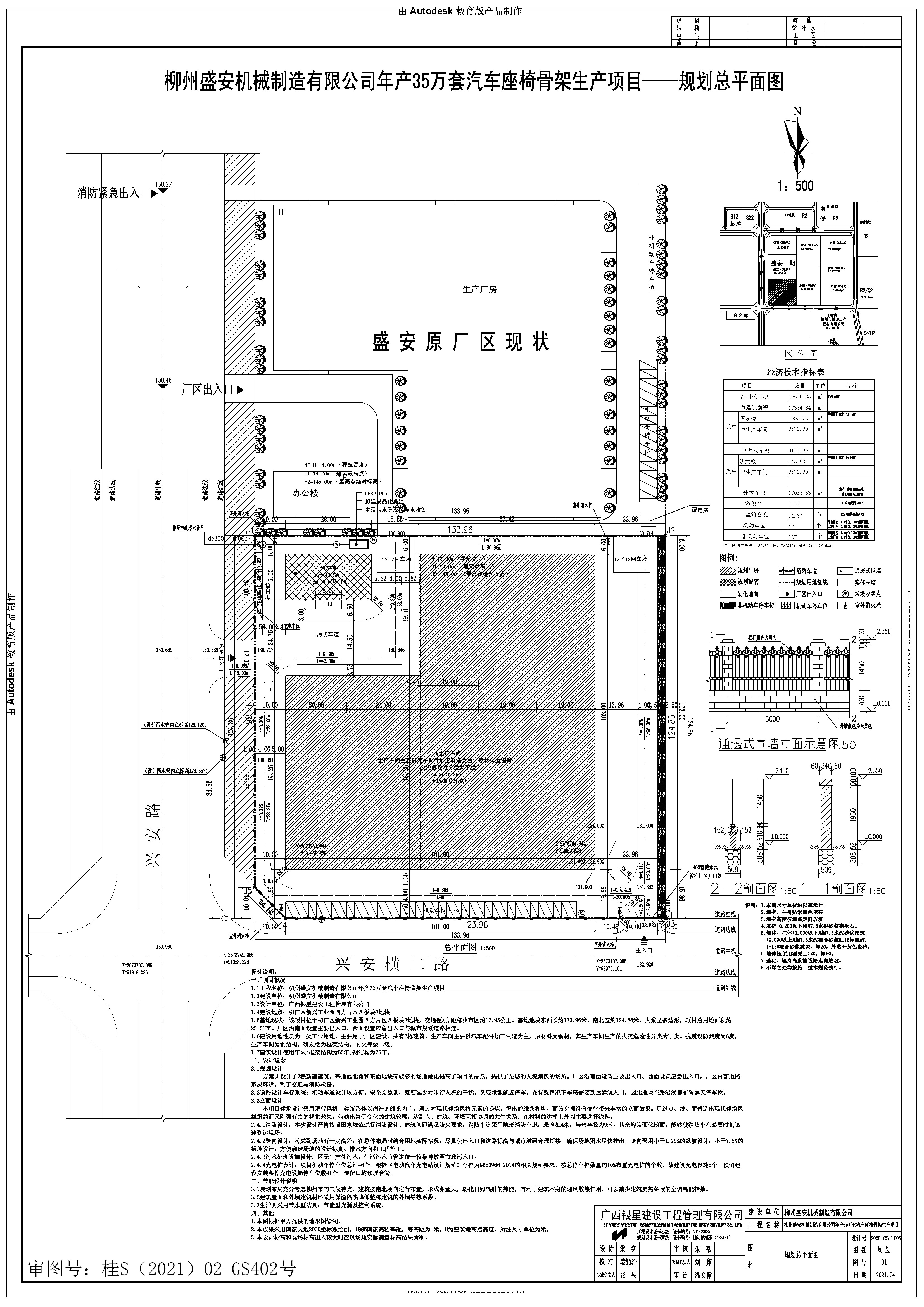
“柳州盛安机械制造有限公司年产35万套汽车座椅骨架生产项目”规划总平面图(2021-152#)已经我局批准

2021-06-07 08:45     来源:柳州市自然资源和规划局
收藏 我要收藏 公共资源调用站点 文章分享
分享 微信
头条
微博 空间 qq
【字体: 打印

“柳州盛安机械制造有限公司年产35万套汽车座椅骨架生产项目”规划总平面图

(2021-152#)已于2021年5月8日经我局批准

(柳州盛安机械制造有限公司 新兴工业园四方片区)


关联文件: