简体版| 繁体版
无障碍
当前位置:首页 > 政务公开 > 政府信息公开 > 法定主动公开内容 > 规划管理 > 规划公布 > 规划总平图批后公布

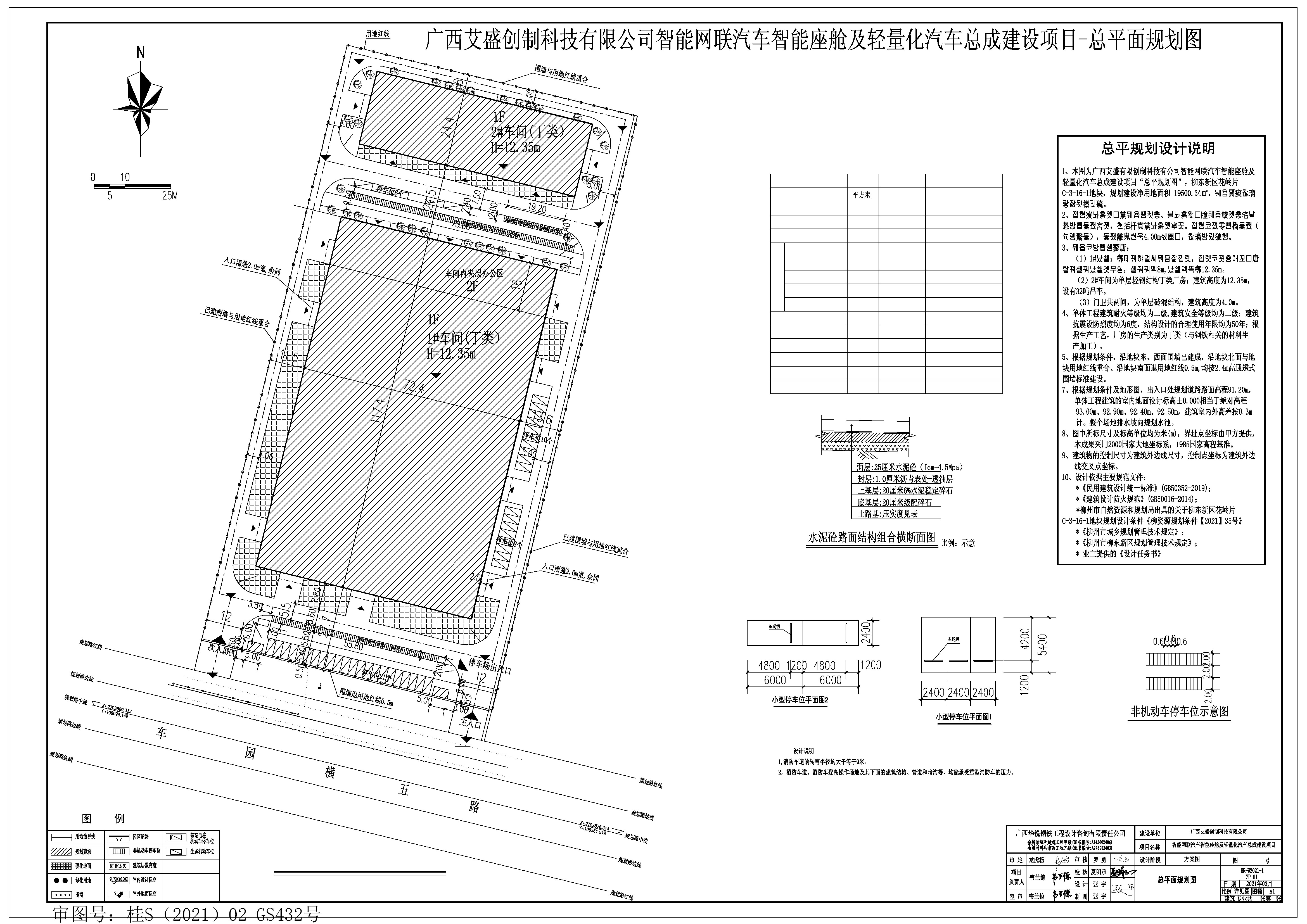
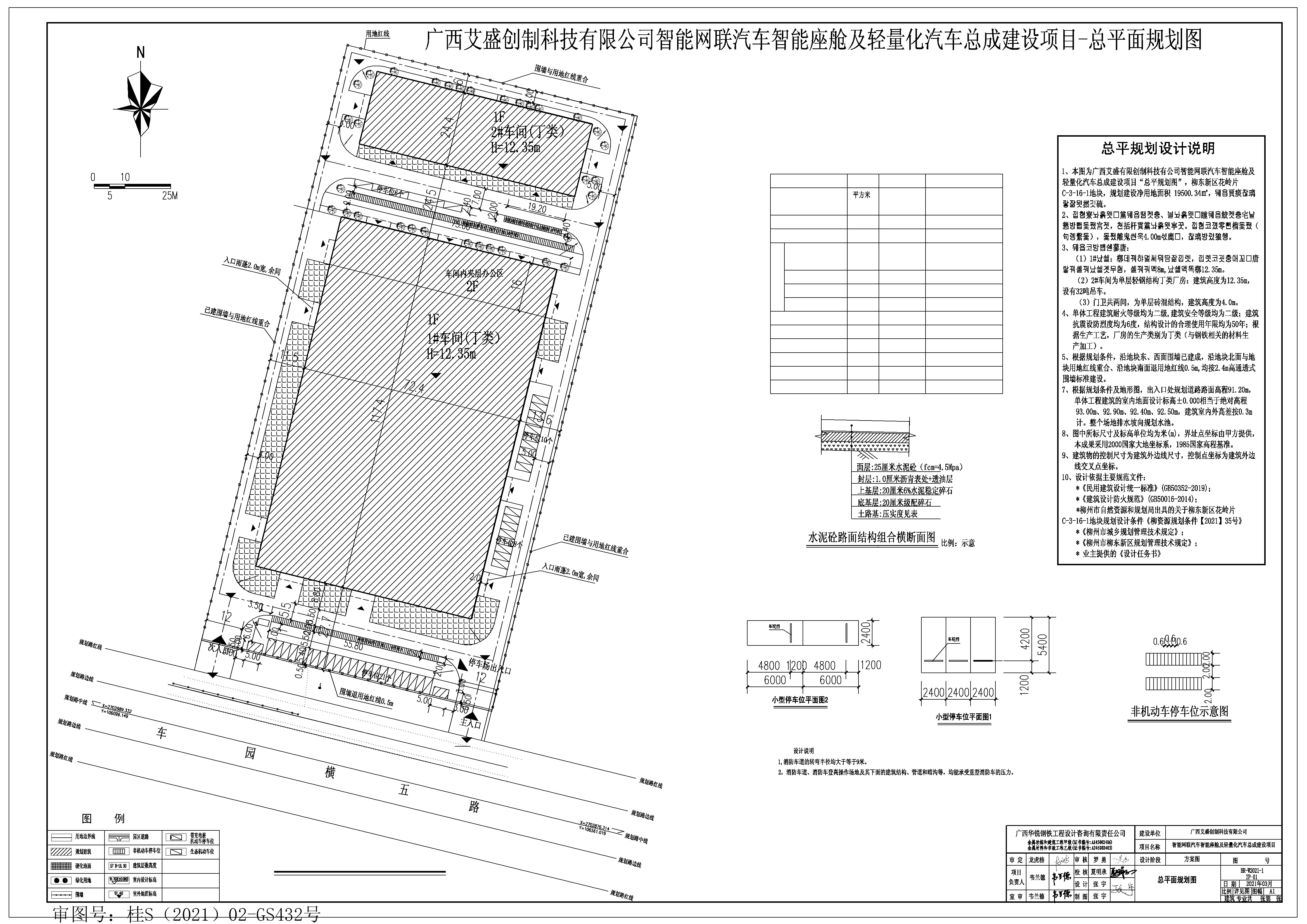
“智能网联汽车智能座舱及轻量化汽车总成建设项目”规划总平面图(2021-182#)已经我局批准

2021-06-07 11:10     来源:柳州市自然资源和规划局
分享 微信
头条
微博 空间 qq
【字体: 打印

“智能网联汽车智能座舱及轻量化汽车总成建设项目”规划总平面图(2021-182#)

已于2021年5月28日经我局批准

(广西艾盛创制科技有限公司  柳东新区花岭片C-3-16-1地块)


关联文件: