简体版| 繁体版
无障碍
当前位置:首页 > 政务公开 > 政府信息公开 > 法定主动公开内容 > 规划管理 > 规划公示 > 规划总平图公示

“绿城杨柳郡B-3-1地块”规划总平图调整公示

2025-10-10 08:00     来源:柳州市自然资源和规划局
分享 微信
头条
微博 空间 qq
【字体: 打印

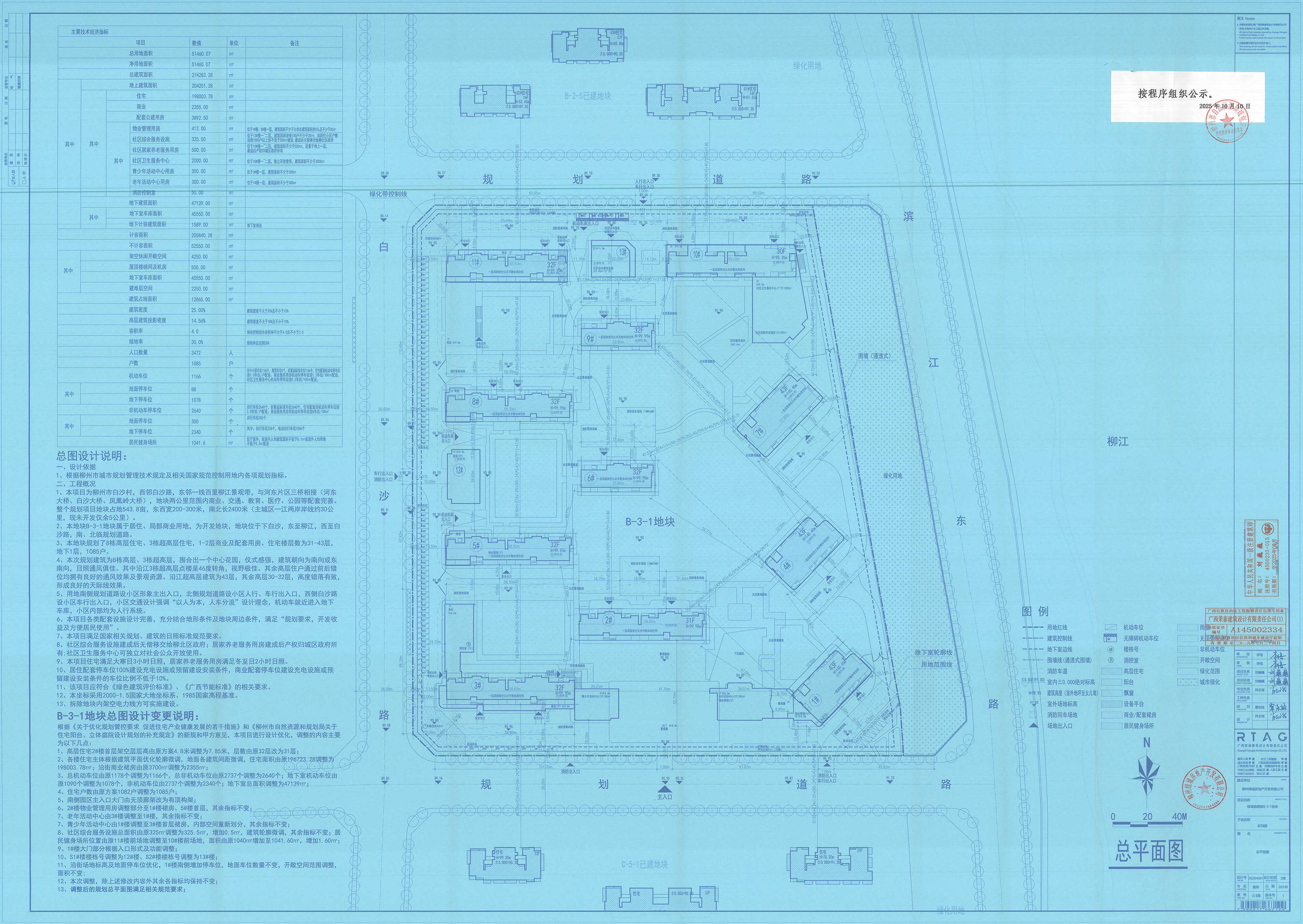
规 划 通 告

    柳州绿城房地产开发有限公司建设位于柳州白沙村旧城改造项目B-3-1地块的“绿城杨柳郡B-3-1地块”项目规划总平面图于2024年5月15日经我局批准。现柳州绿城房地产开发有限公司根据实际开发建设需要向我局提出申请,拟对“绿城杨柳郡B-3-1地块”项目规划总平面图进行调整。

    一、规划总平面图调整内容

    1.2号楼层数由原32层改为31层。

    2.各楼住宅主体根据建筑平面优化轮廓微调,地面各建筑间距微调,具体数据详见修改后的总平图。

    3.南侧园区主入口大门由无顶廊架改为有顶构架。

    4.2#楼物业管理用房取消,分散调整至1#楼裙房、5#楼首层,物业用房总建筑面积不变。

    5.青少年活动中心由1#楼调整至3#楼首层裙房,内部空间重新划分,建筑面积不变。

    6.老年活动中心由3#楼调整至1#楼,建筑面积不变。

    7.社区综合服务设施建筑轮廓调整,总面积由原325㎡调整为325.5㎡,增加0.5㎡。

    8.居民健身场所位置由原11#楼前场地调整至10#楼前场地,面积由原1040㎡增加至1041.60㎡,增加1.6㎡。

    9.S1#楼楼栋号调整为12#楼,建筑层数由1层+局部2层调整为一层,建筑高度由11.5米调整为5.6米。

    10.S2#楼楼栋号调整为13#楼。

    11.1#楼大门部分根据入口形式调整。

    12.沿街场地标高及地面停车位优化,1#楼南侧增加停车位,地面车位数量不变,开敞空间范围调整,面积不变。

    13.住宅户数由原方案1082户调整为1085户。

    14.总机动车位由原1178个调整为1166个,总非机动车位由原2737个调整为2640个;地面机非机动车位由261个调整为300个;地下室机动车位由原1090个调整为1078个,非机动车位由2476个调整为2340个(其中电动自行车1060个)。

    15.调整后八期(B-3-1地块)原总建筑面积由258940.28㎡调整为274283.28㎡,计容建筑面积保持不变,住宅建筑面积由原196723.28㎡调整为198003.78㎡,商业建筑面积由原5300.00㎡调整为3944.00㎡(其中地上2355㎡、地下1589㎡),配套建筑面积由3917㎡调整为3892.5㎡,不计容建筑面积由原53100.00㎡调整为52550.00㎡,架空层改为架空休闲开场空间,面积由原3000.00㎡调整为4250.00㎡,避难层面积由原3600.00㎡调整为2250.00㎡,地下车库面积由原46500.00㎡调整为45550.00㎡,原地下泳池调整为地下商业,地下计容面积由1500㎡调整为1589㎡,地下室总面积由48000㎡调整为47139㎡。

    二、除以上内容调整外,其余均不调整。

    修改后的规划总平面图内容符合国家相关规范及《柳州市城乡规划管理技术规定》要求。根据《中华人民共和国城乡规划法》及相关法律法规的规定,现按有关程序将柳州绿城房地产开发有限公司拟调整的“绿城杨柳郡B-3-1地块”项目规划总平图进行公示,征求利害关系人意见,并召开听证会。

    相关利害关系人对上述调整方案的意见,可通过书面方式或在听证会上发言的方式提出。书面意见和参加听证会申请请于2025年10月16日前送至柳州市自然资源和规划局政策法规科(联系电话:0772-2825345,地址:柳州市高新一路北一巷7号)。

    听证会参加人员应于2025年10月16日前向听证会提交参加听证会申请及个人身份证明、利害关系证明,并准时参加听证会,对听证会主持人员组成有异议的,应在会前提出。参加听证会的共同利害关系人人数较多的,应选取代表作为发言人,其余参加会议的共同利害关系人可通过书面或委托代表发言的方式表达意见。

    公示地点:绿城杨柳郡B-3-1地块项目所在地
                中山东路24号大门两侧公示栏
              网站:http://lz.dnr.gxzf.gov.cn

    公示时间:2025年10月10日至2025年10月16日。

    听证时间:2025年10月17日(星期五)上午10点30分。

    听证地点:柳州市自然资源和规划局一楼信访接待室(柳州市高新一路北一巷7号)。

    听证会主持人:周剑
    听证员:      文博
    记录员:      谢涵彬

    特此通告!

柳州市自然资源和规划局    
2025年10月10日        


规划总平面图-调整前

规划总平面图-调整后


关联文件: