简体版| 繁体版
无障碍
当前位置:首页 > 政务公开 > 政府信息公开 > 法定主动公开内容 > 规划管理 > 规划公示 > 规划总平图公示

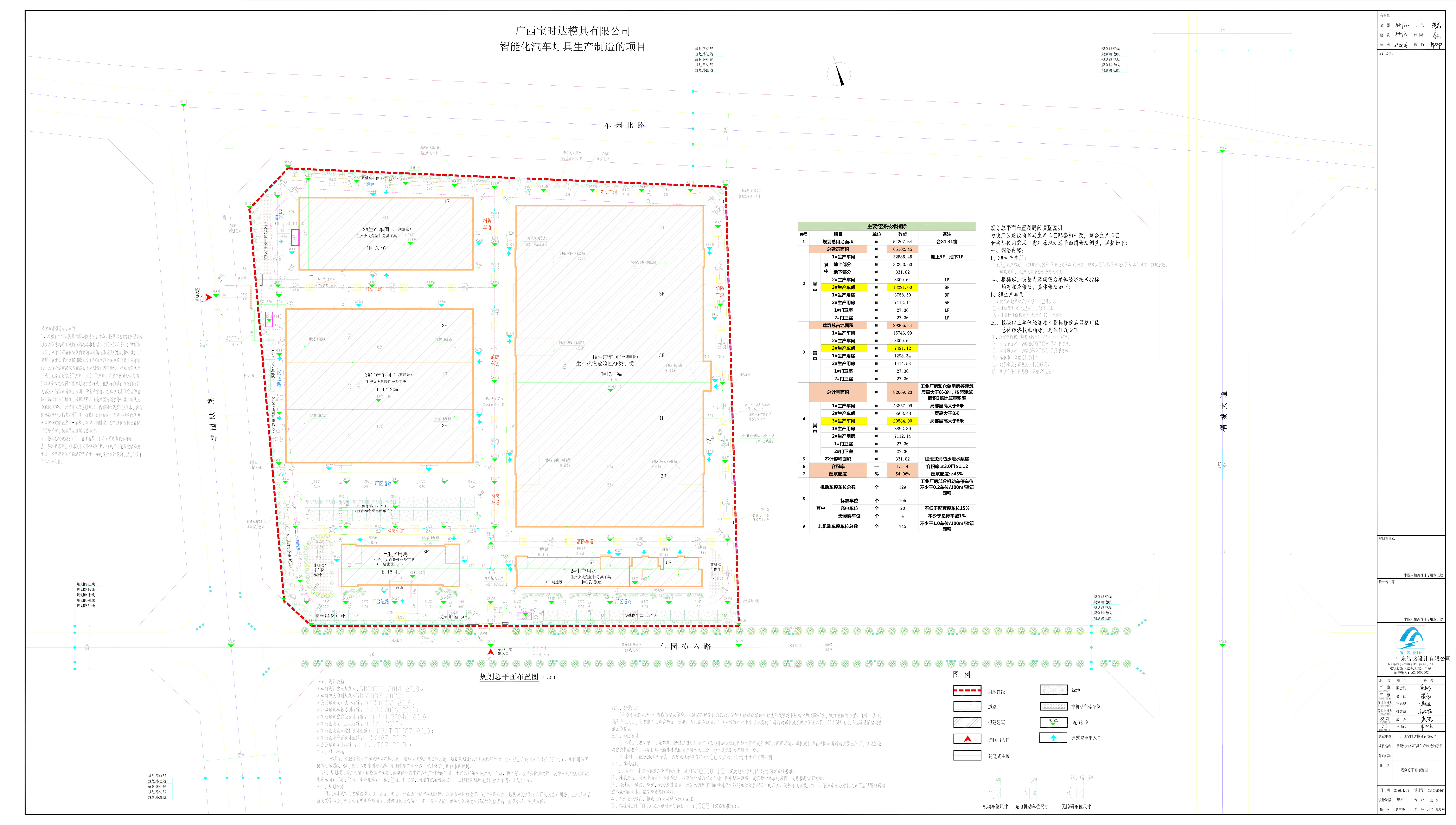
“智能化汽车灯具生产制造的项目规划总平图调整”批前公示

2026-04-23 16:56     来源:柳州市自然资源和规划局
收藏 我要收藏 公共资源调用站点 文章分享
分享 微信
头条
微博 空间 qq
【字体: 打印

现对“智能化汽车灯具生产制造的项目规划总平图调整”方案进行批前公示,公示期从2026年4月23日2026年4月29日。相关利害关系人对上述方案的意见,可以书面阐明观点理由的形式提出。有关书面意见请于2026年4月29日前送至柳州市自然资源和规划局政策法规科,联系电话:2825345。

关联文件: