简体版| 繁体版
无障碍
当前位置:首页 > 政务公开 > 政府信息公开 > 法定主动公开内容 > 重大建设项目批准和实施 > 重大设计变更信息 > 建设工程规划设计方案调整公示

“荣和天筑”规划总平及建筑设计方案调整公示

2025-10-17 08:00     来源:柳州市自然资源和规划局
收藏 我要收藏 公共资源调用站点 文章分享
分享 微信
头条
微博 空间 qq
【字体: 打印

规 划 通 告

    柳州荣和美地置业有限责任公司建设位于柳南区西环路以东河西路以北中铁物流园及周边片区5-8号地块的“荣和天筑”项目规划总平面图于2025年5月16日经我局批准;荣和天筑6号地块2号楼及地下室、3号楼主楼及裙楼一期及地下室(建字第450200202200159号)于2022年4月27日经我局批准。现柳州荣和美地置业有限责任公司根据实际开发建设需要向我局提出申请,拟对“荣和天筑”项目规划总平面6号地块2号楼及地下室、3号楼及地下室建筑设计方案进行调整。

    一、规划总平面图调整内容为:

    (一)6号地块

    1.2号楼位置不变,建筑层数由33层调整为31层,建筑高度由100米调整为96.5米,裙房由2层商业调整为局部2层商业及配套用房。3号楼位置向南平移,建筑层数由30层调整为29层,建筑高度由90.0米调整为91.0米,住宅塔楼由1T4户调整为1T5户;3号楼裙房相应调整并在3号楼东南侧增设地下室人防疏散楼梯。

    2.2号楼主楼与1号楼主楼最小建筑间距保持不变,建筑标高保持不变,与3号楼主楼最小建筑间距由23.50米调整为25.57米;3号楼主楼与5号地块2号楼最小建筑间距由29.5米调整为31.5米,与4号楼(幼儿园)最小建筑间距由36.85米调整为23.0米,建筑标高保持不变。

    3.3号楼东侧机动车出入口调整至3号楼西北侧。2号楼北侧机动车位由19个调整为26个,3号楼北侧机动车位由13个调整为8个,3号楼西侧机动车位由10个调整为8个,地面总机动车停车位数保持不变。2号楼东侧自行车车位由61个调整为59个,2号楼北侧由149个自行车车位调整为36个自行车车位、61个电动自行车车位(折合122个自行车车位),3号楼北侧增加59个电动自行车车位(折合118个电自行车车位),3号楼西侧由375个自行车车位调整为127个电动自行车车位(折合254个自行车车位),地面总非机动车停车位数由800个自行车车位调整为310个自行车车位,247个电动自行车车位(折合494个自行车车位)即804个,增加4个。

    4.住宅户数由632户调整为636户。地下机动车停车位数由569个调整为573个,地下非机动车停车位数由800个自行车车位调整为546个自行车车位、129个电动自行车车位(折合258个自行车车位)即804个。地下室面积由21115平方米调整为20925平方米,减少190平方米。总建筑面积由95333.12平方米调整为95243.12平方米,减少90平方米。

    5.3号楼首层社区综合服务设施建筑面积由189.6平方米调整为190.8平方米,3号楼首层青少年活动用房、老年人活动用房调整至2号楼2层。地块东北角的活动场地由214.4平方米调整为222.31平方米,居住区内部活动场地由392.32平方米调整为388.25平方米。

    (二)5号地块、7号地块、8号地块本次不做调整。

    二、建筑设计方案调整内容为:

    2、3号楼外立面色彩风格均不调整,仅调整户型,增加阳台面积,建筑功能根据总平面图相应调整,调整后的户型详见公示图纸。

    三、除以上调整外不涉及其他内容调整。

    修改后的荣和天筑项目6号地块2、3号楼建筑设计方案内容满足现公示的调整后的规划总平面图、相关国家规范及柳州市城乡规划管理技术规定要求。根据《中华人民共和国城乡规划法》及相关法律法规的规定,现按有关程序将柳州荣和美地置业有限责任公司拟调整的荣和天筑规划总平面图及荣和天筑6号地块2号楼及地下室、3号楼及地下室规划的建筑设计方案进行公示,征求利害关系人意见,并召开听证会。

    相关利害关系人对上述调整方案的意见,可通过书面方式或在听证会上发言的方式提出。书面意见和参加听证会申请请于2025年10月23日前送至柳州市自然资源和规划局政策法规科(联系电话:0772-2825345,地址:柳州市高新一路北一巷7号)。

    听证会参加人员应于2025年10月23日前向听证会提交参加听证会申请及个人身份证明、利害关系证明,并准时参加听证会,对听证会主持人员组成有异议的,应在会前提出。参加听证会的共同利害关系人人数较多的,应选取代表作为发言人,其余参加会议的共同利害关系人可通过书面或委托代表发言的方式表达意见。

    公示地点:柳南区西环路以东河西路以北中铁物流园及周边片区5-8号地块(荣和天筑项目所在地);
                中山东路24号大门两侧公示栏;
              网站:http://lz.dnr.gxzf.gov.cn。

    公示时间:2025年10月17日至2025年10月23日

    听证时间:2025年10月24日(星期五)上午10点30分

    听证地点:柳州市自然资源和规划局一楼信访接待室(柳州市高新一路北一巷7号)

    听证会主持人:周  剑
    听证员:      汪子钰
    记录员:      谢涵彬

    特此通告!

柳州市自然资源和规划局    
2025年10月17日        


规划总平面图-调整前


规划总平面图-调整后


6号地块2号楼及地下室

负一层平面图-调整前


负一层平面图、负二层平面图-调整后



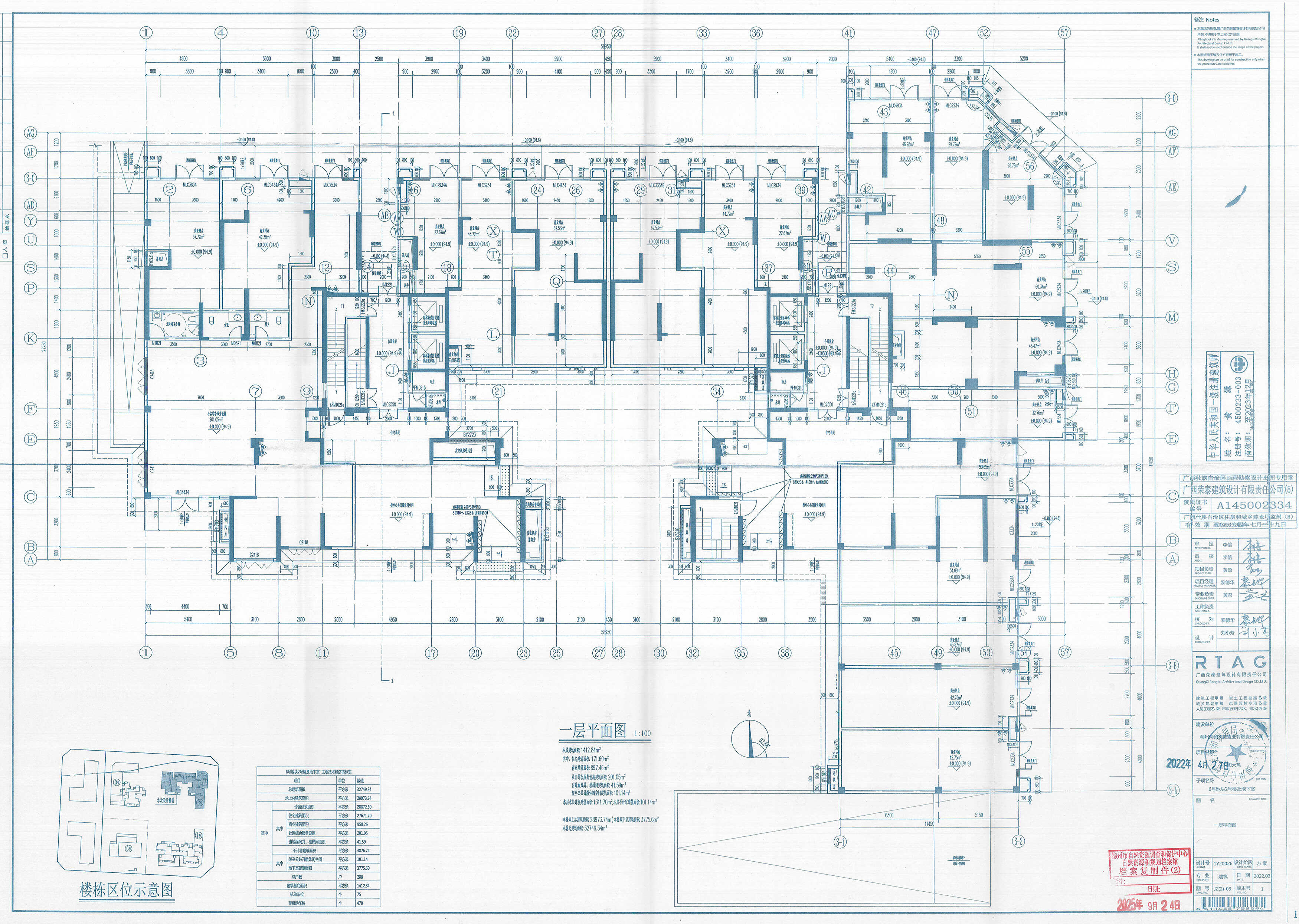
一层平面图-调整前


一层平面图-调整后


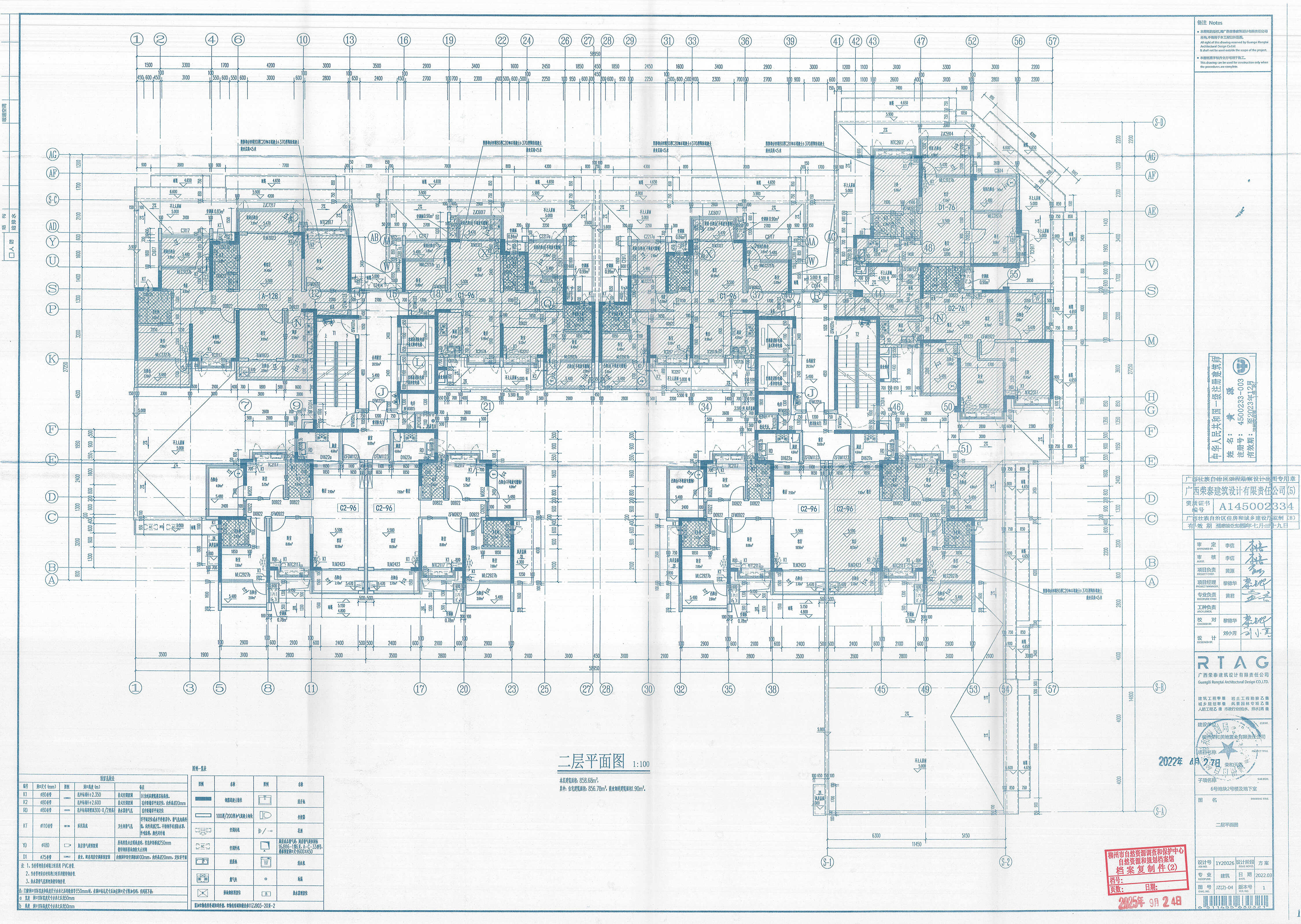
二层平面图、三~三十三层平面图-调整前


商业二层、住宅二~三层平面图、商业屋面、住宅四层平面图、五~三十一层平面图-调整后


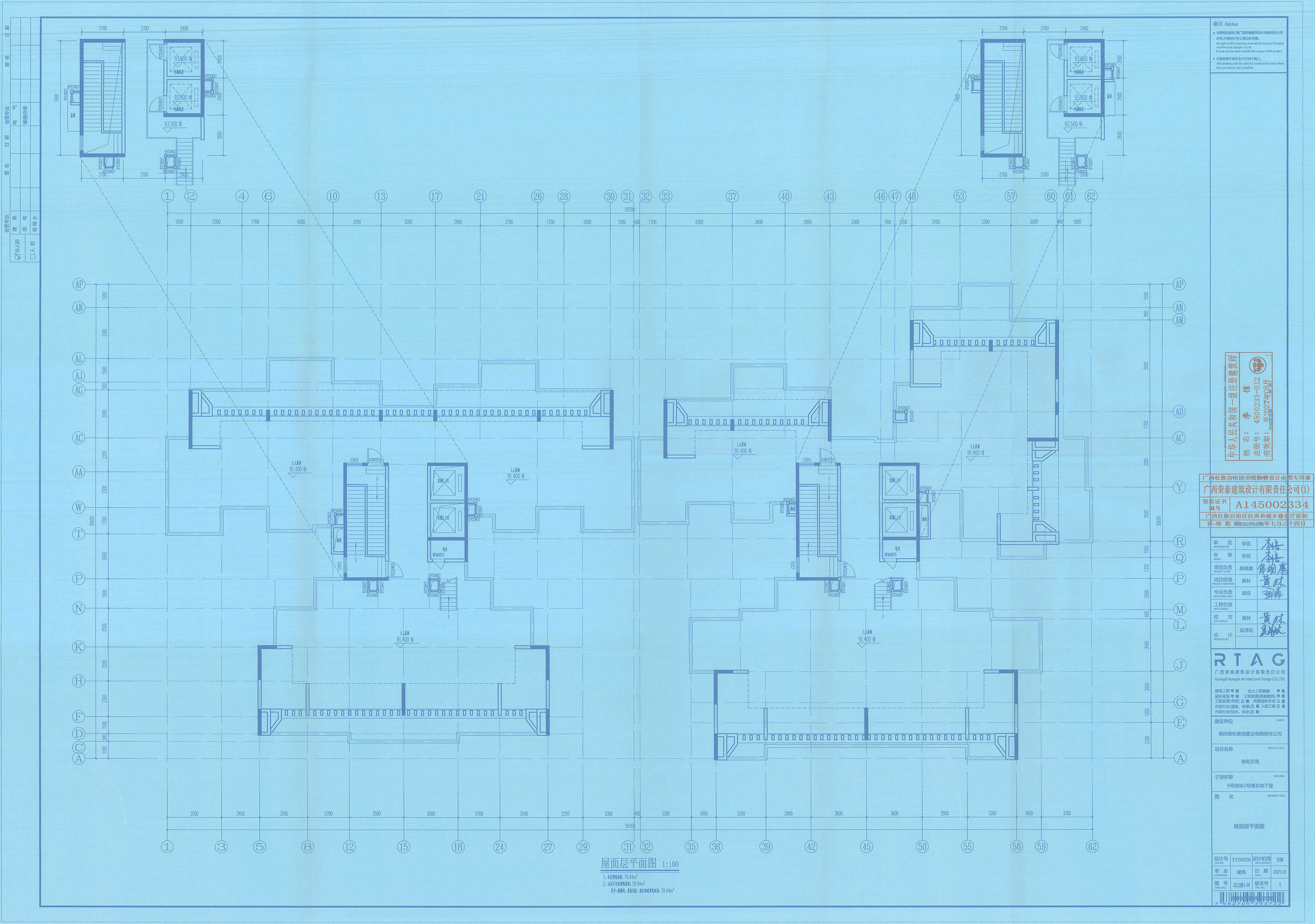
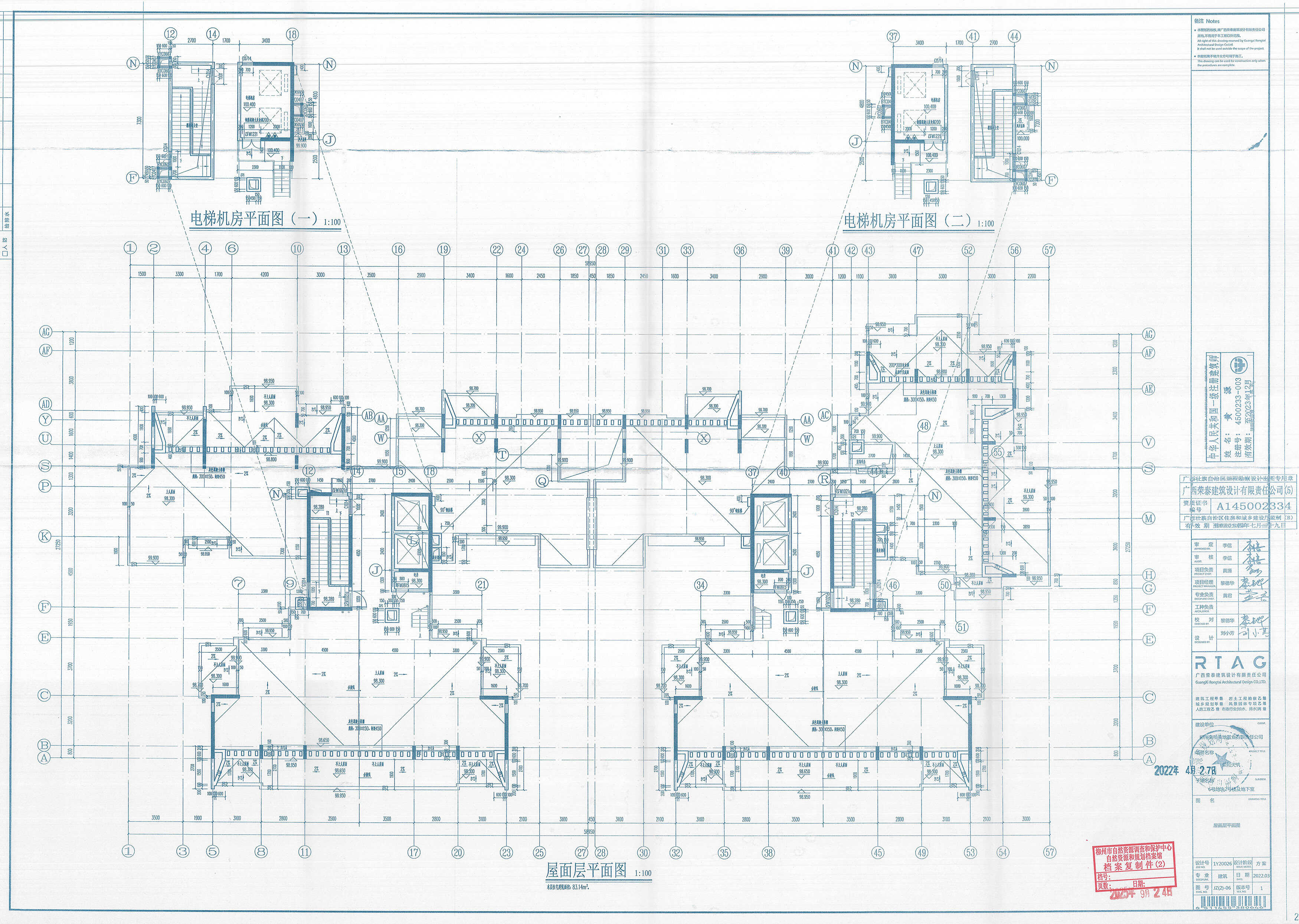
屋面层平面图-调整前


屋面层平面图-调整后
构架层平面图-调整前


构架层平面图-调整后


立面图-调整前

立面图-调整后









1-1剖面图-调整前


1-1剖面图-调整后


6号地块3号楼及地下室

负一层平面图-调整前



负一层平面图-调整后



负二层平面图-调整前


负二层平面图-调整后



一层平面图-调整前


一层平面图-调整后


二层平面图-调整前


二层平面图-调整后



三层平面图、四~二十七层平面图-调整前


三~二十九层平面图-调整后



屋面层平面图-调整前


屋面层平面图-调整后


构架层平面图-调整前


构架层平面图-调整后


立面图-调整前

立面图-调整后









1-1剖面图-调整前

1-1剖面图-调整后


关联文件: