简体版| 繁体版
无障碍
当前位置:首页 > 政务公开 > 政府信息公开 > 法定主动公开内容 > 重大建设项目批准和实施 > 重大设计变更信息 > 建设工程规划设计方案调整公示

“柳州市投资大厦工程”规划总平及规划设计方案调整公示

2025-10-20 08:00     来源:柳州市自然资源和规划局
收藏 我要收藏 公共资源调用站点 文章分享
分享 微信
头条
微博 空间 qq
【字体: 打印

规 划 通 告

    柳州市城市投资建设发展有限公司建设位于潭中东路72号投资大厦1栋的“柳州市投资大厦工程”项目规划总平图(2010—171)于2010年12月8日经我局批准。柳州投资大厦A座建设工程规划(建字第450201201200225)于2012年9月14日经我局批准。现柳州市城市投资建设发展有限公司根据实际开发建设需要向我局提出申请,拟对“柳州市投资大厦工程”项目规划总平图及柳州投资大厦A座规划设计方案进行调整。

    一、规划总平面图调整内容

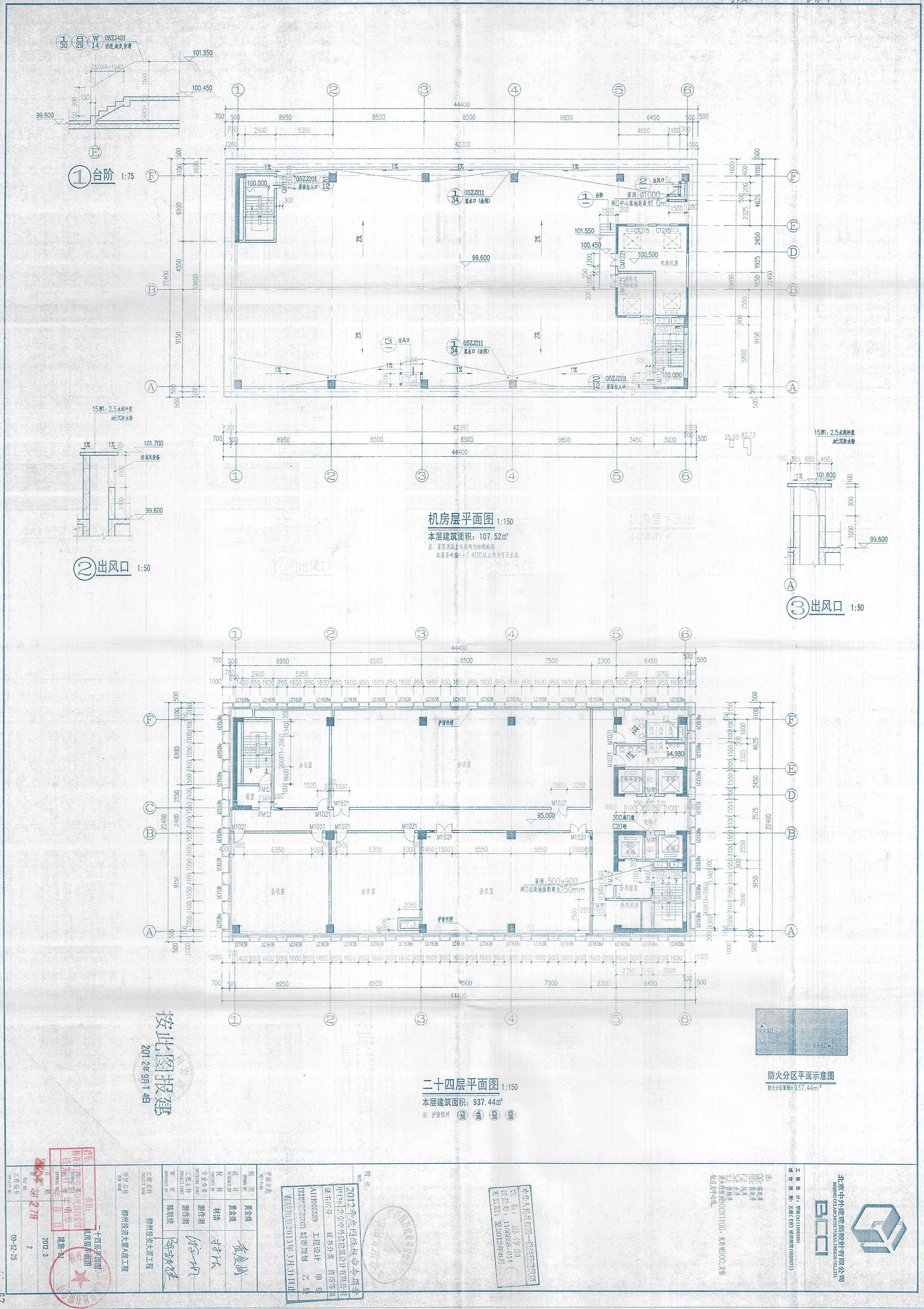
    (一)B2地块(投资大厦A座,建字第450201201200225,其中:地下二层为车库,地上一至三层为商业用房,四至二十四层为办公用房),现将十五层~二十四层办公用房调整为酒店用房。

    (二)项目总建筑面积由58144平方米调整为56538.7平方米;计容面积由44031平方米调整为42812.9平方米;占地面积由2086平方米调整为1977.18平方米;容积率由5.7调整为5.5;建筑密度由27%调整为25.6%。

    (三)B2地块(投资大厦A座)总建筑面积由27670平方米调整为26680.20平方米,地上建筑面积由23664平方米调整为22744平方米,地下建筑面积由4006平方米调整为3936.2平方米。其中,办公用房建筑面积由20940平方米调整为11179.53平方米,商业用房建筑面积由2604平方米调整为2070.07平方米,新增酒店用房建筑面积为9370.40平方米,物业管理用房和公厕建筑面积保持不变。B1地块(投资大厦B座)地上建筑面积由20367平方米调整为20068.9平方米,其中办公用房由20287平方米调整为19988.9平方米,物业管理用房建筑面积保持不变。

    (四)机动车停车位:调整前B1地块(投资大厦B座)办公配建机动车停车位122个,B2地块(投资大厦A座)办公配建机动车停车位126个,商业配建机动车停车位16个,社会公共车位50个,合计机动车停车位314个。调整后B1地块(投资大厦B座)办公配建机动车停车位120个,B2地块(投资大厦A座)办公配建机动车停车位68个,商业配建机动车停车位13个,调整后酒店客房数105间,酒店配建机动车停车位63个,社会公共车位50个,合计机动车停车位314个。调整后机动车停车位无变化。

    (五)非机动车停车位:调整前B1地块(投资大厦B座)办公配建非机动车停车位406个,B2地块(投资大厦A座)办公配建非机动车停车位419个,商业配建非机动车停车位105个,合计非机动车停车位930个,实际配建非机动车停车位933个。调整后B1地块(投资大厦B座)办公配建非机动车停车位400个,B2地块(投资大厦A座)办公配建非机动车停车位234个,商业配建非机动车停车位83个,调整后酒店客房数105间,配建非机动车停车位210个,合计非机动车停车位927个,实际配建非机动车停车位933个。调整后非机动车停车位无变化。

    二、规划方案调整内容

    (一)调整十五层~二十四层由办公用房调整为酒店用房,并对内部功能进行调整。

    (二)建筑外轮廓线、建筑外立面造型、建筑外窗、建筑高度等均不做调整。

    三、除以上调整外不涉及其他内容调整。

    修改后的规划总平方案和规划方案内容符合国家相关规范及《柳州市城乡规划管理技术规定》。根据《中华人民共和国城乡规划法》及相关法律法规的规定,现按有关程序将柳州市城市投资建设发展有限公司拟调整的“柳州市投资大厦工程”总平图进行公示,征求利害关系人意见,并召开听证会。

    相关利害关系人对上述规划方案的意见,可通过书面方式或在听证会上发言的方式提出。书面意见和参加听证会申请请于2025年10月20日前送至柳州市自然资源和规划局政策法规科(联系电话:0772-2825345,地址:柳州市高新一路北一巷7号)。

    听证会参加人员应于2025年10月20日前向听证会提交参加听证会申请及个人身份证明、利害关系证明,并准时参加听证会,对听证会主持人员组成有异议的,应在会前提出。参加听证会的共同利害关系人人数较多的,应选取代表作为发言人,其余参加会议的共同利害关系人可通过书面或委托代表发言的方式表达意见。

    公示地点:柳州投资大厦A座项目所在地;
              中山东路24号大门两侧公示栏;
              网站:http://lz.dnr.gxzf.gov.cn。

    公示时间:2025年10月20日至2025年10月26日。

    听证时间:2025年10月27日(星期一)下午3点30分。

    听证地点:柳州市自然资源和规划局一楼信访接待室(柳州市高新一路北一巷7号)。

    听证会主持人:周  剑
    听证员:      汪子钰
    记录员:      谢涵彬

    特此通告!

柳州市自然资源和规划局    
2025年10月20日        



规划总平面图-调整前



规划总平面图-调整后


十五层平面图-调整前


十五层平面图-调整后


十六层平面图、十七层平面图-调整前


十六层平面图、十七层平面图-调整后


十八层平面图、十九层平面图-调整前


十八层平面图、十九层平面图-调整后


二十层平面图、二十一层平面图-调整前


二十层平面图、二十一层平面图-调整后


二十二层平面图、二十三层平面图-调整前


二十二层平面图、二十三层平面图-调整后


二十四层平面图-调整前

二十四层平面图-调整后


关联文件: