简体版
|
繁体版
无障碍
集
网站首页
政府信息公开
信息公开指南
信息公开制度
信息公开目录
法定主动公开内容
信息公开年报
依申请公开
网上办事
互动交流
不动产登记
党风廉政
13029016
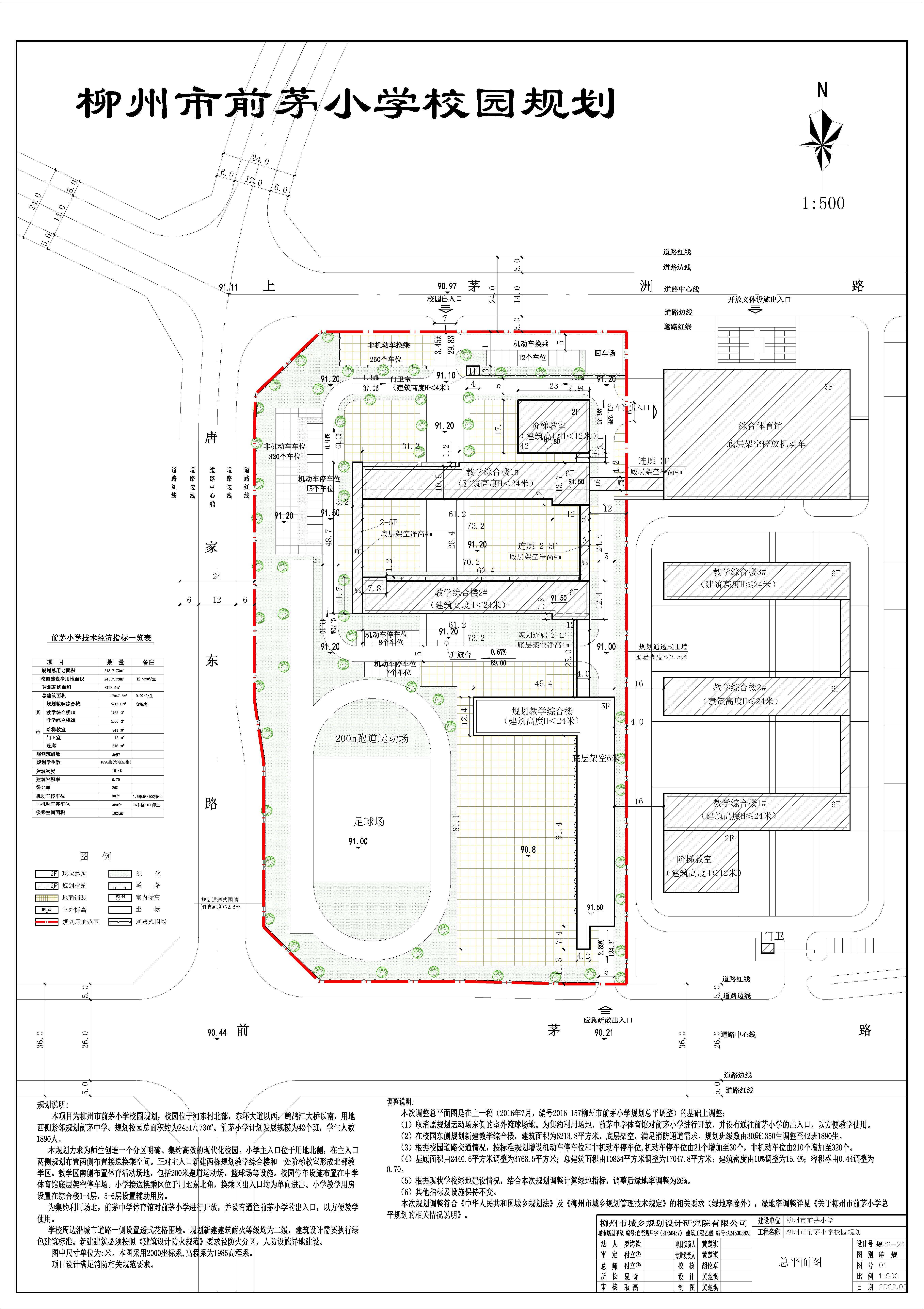
“柳州市前茅小学校园”规划总平调整(2022-168#)已经我局批准
20
柳州市自然资源和规划局
2022-06-17
69237
规划总平图批后公布
当前位置:
首页
>
政务公开
>
政府信息公开
>
法定主动公开内容
>
规划管理
>
规划公布
>
规划总平图批后公布
“柳州市前茅小学校园”规划总平调整(2022-168#)已经我局批准
2022-06-17 08:45 来源:柳州市自然资源和规划局
我要收藏
公共资源调用站点
文章分享
分享
微信
头条
微博
空间
qq
【字体:
大
中
小
】
打印
“
柳州市前茅小学校园
”
规划总平调整
(
2022-168
#
)
已于
2022
年6月14日
经我局批准
(
柳州市前茅小学
河东村北部
)
文件下载:
2022-168#柳州市前茅小学校园规划总平调整(2022年6月14日经我局审批)(柳州市前茅小学 河东村北部).pdf
关联文件: